Large garden, multiple parking and scope to extend — chain free.
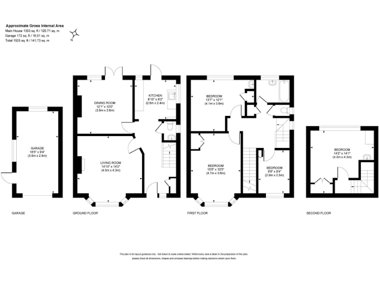
- Four bedrooms across three floors, including top-floor double with eave storage
- Sunny 118' x 29' south-east facing rear garden
- L-shaped block-paved driveway for several vehicles plus single garage
- Bay-fronted sitting room and separate dining room with garden doors
- Single family bathroom; two separate WCs (ground and first floors)
- Gas boiler ('Glow Worm') and radiators; double glazing; EPC C
- Excellent potential to extend and update (STPP)
- Council Tax Band E; some modernisation required internally
A spacious 1950s semi-detached family home arranged over three floors, set on a large plot with a long, sunny south-east garden. The house offers four bedrooms, a bay-fronted sitting room, separate dining room with garden doors, and a garage plus wide block-paved driveway for several vehicles. Vacant possession and NO CHAIN make this easy to move into or renovate straightaway.
The layout suits families needing flexible space: three bedrooms on the first floor and a double top-floor bedroom with built-in wardrobes and eaves storage. There is a single family bathroom, a separate cloakroom on the ground floor and another WC on the first floor, so mornings may require planning for larger households. Gas central heating to radiators and double glazing are in place, with an EPC rating of C.
For buyers wanting to add value, the property has excellent potential to extend and modernise (STPP). The garden is a standout feature — approximately 118' x 29' south-east facing — ideal for children, pets and entertaining. Practical advantages include off-street parking for multiple cars, single garage and straightforward walkable access to Lindfield High Street, local nature reserve, and mainline rail links to Haywards Heath.
Notable considerations: the kitchen and some internal fittings are dated and would benefit from updating; the wall-mounted 'Glow Worm' boiler is present but not new; there is only one fitted family bathroom. Council Tax Band E reflects above-average running costs. Overall this property will appeal to growing families or buyers seeking a project with scope to extend and personalise in a popular, well-served village location.
5 bedroom detached house for sale in Gatesmead, Haywards Heath, RH16 — £950,000 • 5 bed • 2 bath • 1950 ft²
3 bedroom end of terrace house for sale in Linden Grove, Lindfield, RH16 — £585,000 • 3 bed • 1 bath • 1287 ft²
4 bedroom semi-detached house for sale in Chilton Grove, Lindfield, RH16 — £725,000 • 4 bed • 3 bath • 1688 ft²
3 bedroom end of terrace house for sale in Fieldway, Lindfield, RH16 — £420,000 • 3 bed • 1 bath • 818 ft²
3 bedroom terraced house for sale in Fieldway, Lindfield, RH16 — £385,000 • 3 bed • 1 bath • 774 ft²
3 bedroom end of terrace house for sale in Silver Birches, Haywards Heath, RH16 — £425,000 • 3 bed • 1 bath • 1285 ft²






























































