**Standout Features:**
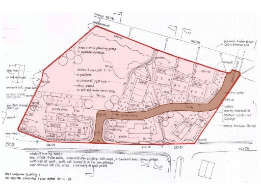
- Expansive 2.01-acre residential development site
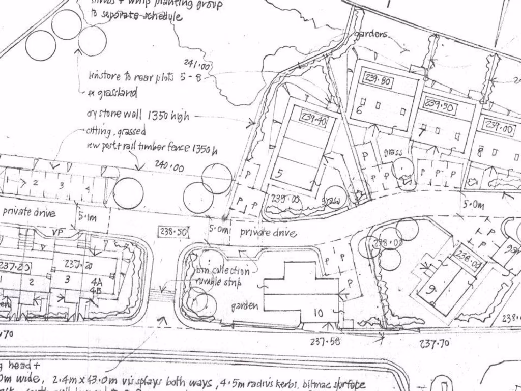
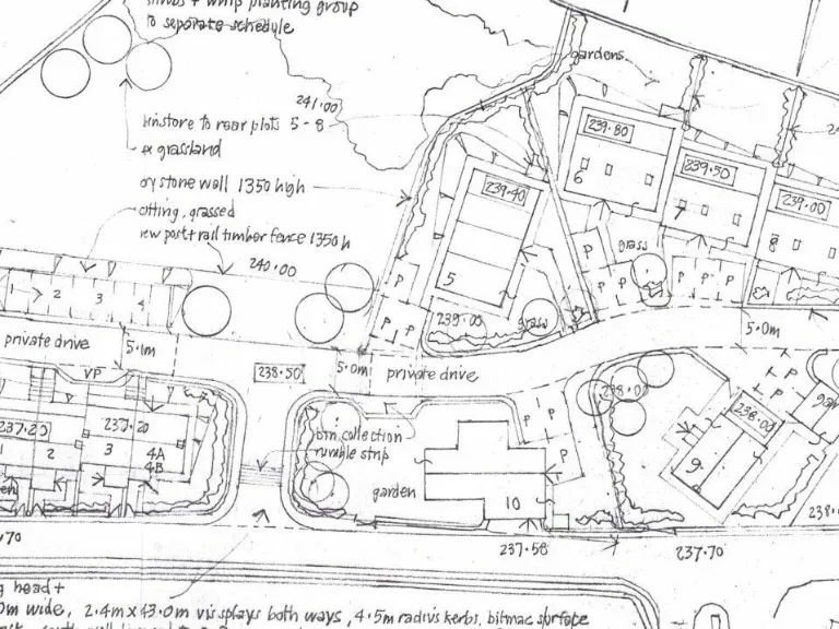
- Full planning permission for ten new build dwellings and conversion of a stone barn
- Combination of affordable and open market housing options
- Scenic location on the edge of Horton in Ribblesdale, Yorkshire Dales National Park
- Close proximity to the market town of Settle (6.5 miles) with additional amenities
- Rural setting with low crime rate and good mobile signal
**Concise Summary:**
This rare 2.01-acre residential development site in Horton in Ribblesdale presents an exciting investment opportunity with full planning permission for the construction of ten new dwellings, alongside a conversion of a charming traditional stone barn into an additional home. The approved plans include a blend of affordable housing and open market options, appealing to a diverse range of buyers. Nestled within the picturesque Yorkshire Dales National Park, this site offers stunning countryside views and a tranquil living environment just 6.5 miles from the bustling market town of Settle, ensuring both peace and accessibility.
While the site is currently undeveloped and requires the introduction of services, the expansive plot allows for significant flexibility in creating a thriving community. This unique offering is positioned to attract both families seeking an idyllic rural lifestyle and investors looking to capitalize on the growing demand for quality housing in scenic locations. Don’t miss this exceptional chance to be part of a desirable and exclusive development before it's gone!
Land for sale in Residential development for sale – Residential Development Site, Long Preston, BD23 4PH, BD23 — £575,000 • 1 bed • 1 bath • 1765 ft²
Plot for sale in Development Site, Horton-In-Ribblesdale, BD24 — £200,000 • 1 bed • 1 bath
Barn for sale in Barn conversion for sale – Wigglesworth Hall Barn, Wigglesworth, Skipton, BD23 4RL, BD23 — £545,000 • 1 bed • 1 bath • 10000 ft²
3 bedroom semi-detached house for sale in Thompsons Barn & Crooks Cottage, Horton In Ribblesdale, BD24 , BD24 — £525,000 • 3 bed • 2 bath • 1301 ft²
3 bedroom detached house for sale in The Barn, Appersett, Hawes, DL8 3LN, DL8 — £600,000 • 3 bed • 3 bath • 1927 ft²
Plot for sale in Mill House, Spout Lane, Wennington, LA2 8NX, LA2 — £1,050,000 • 1 bed • 1 bath


























