NW5 1UH - 2 bed tufnell park garden flat in 67 Burghley Road, NW5 1UH

View on Property Piper

2 bedroom flat for sale in Burghley Road, Kentish Town, NW5

Summary - Flat 1, 67 Burghley Road NW5 1UH

2 bed 1 bath Flat

Victorian two-bedroom flat with private garden and easy transport links.
Private rear garden with patio, lawn and storage shed
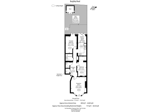
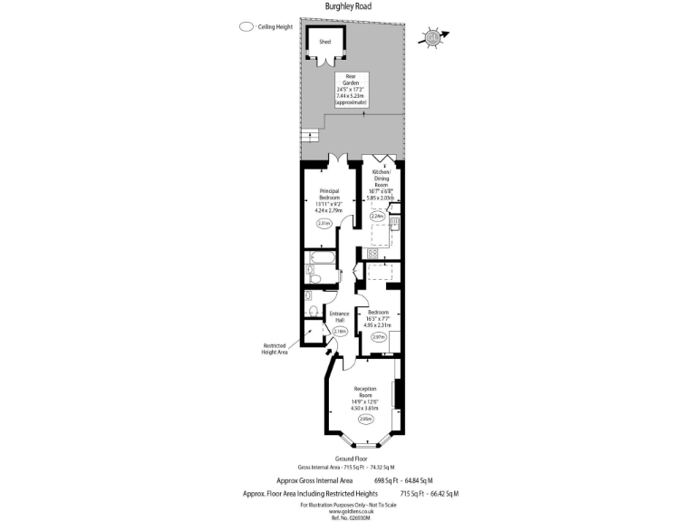
A bright two-bedroom garden flat on Burghley Road combining Victorian period features with comfortable modern fittings. The spacious reception room has a striking bay window and high ceilings, while the principal bedroom and second bedroom provide practical family accommodation. The modern bathroom and fitted kitchen suit everyday living.

Outside, the private rear garden (patio, lawn and shed) is a genuine asset for outdoor dining and storage—rare for flats in the area. At about 698 sq ft, the layout feels roomy for central London living and benefits from fast broadband and excellent mobile signal.

Practical points are straightforward: the property is leasehold with around 100 years remaining and a below-average service charge of £480. The building has solid brick walls likely without insulation, so you may want to budget for thermal improvements. Crime in the immediate area is higher than average, a factual local drawback to consider alongside the many local amenities and transport connections.

This flat suits families wanting proximity to top-rated primary and secondary schools, buyers seeking a period property with garden space, or investors targeting strong rental demand. It offers a balance of character and convenience, with some scope for energy improvements to increase comfort and value.

Property Details

Brochure Descriptions

Image Descriptions

Floorplan Description

Rooms

Textual Property Features

Target Audience

AI Tags

Detected Visual Features

EPC Details

Nearby Schools

Nearest Bars And Restaurants

,,,,}

Nearest General Shops

,,}

Nearest Grocery shops

,,}

Nearest Supermarkets

,,}

Nearest Religious buildings

,,}

Nearest Medical buildings

,,,}

Nearest Airports

,}

Nearest Leisure Facilities

,,,,}

Nearest Tourist attractions

,,}

Nearest Train stations

,,,,}

Nearest Bus stations and stops

,,,,}

Nearest Hotels

,,}

Tags

Local Market Stats

AirBnB Data

Similar Properties

Meta

High Res Images

Compatible Images

Low res Images

Thumbnails

Raw Images

High Res Floorplan Images

Compatible Floorplan Images

Low res Floorplan Images

FloorplanImages Thumbnail

Raw Floorplan Images