Low‑maintenance one‑bed retirement apartment with balcony and marina views near Penzance town centre.
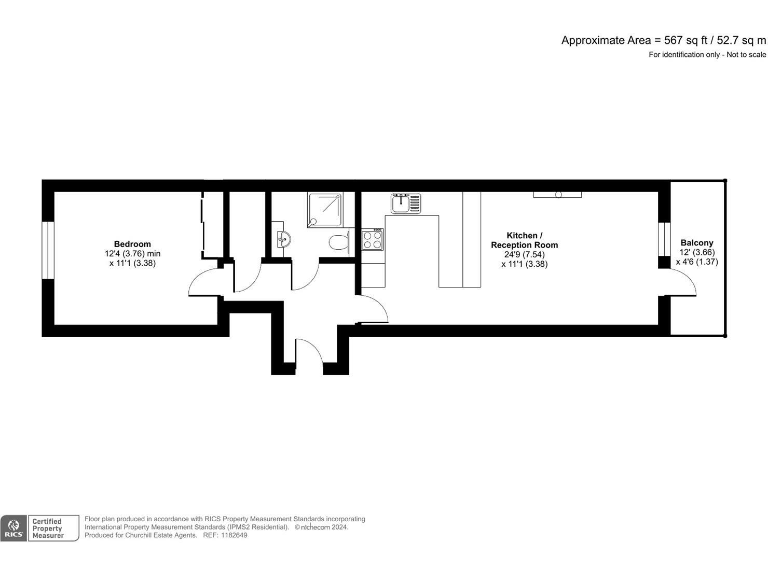
Balcony with marina/ocean views and convenient lift access nearby
Open-plan living with integrated kitchen appliances and storage cupboard
Good-size double bedroom with built-in mirrored wardrobe
Onsite lodge manager five days a week and 24-hour Careline safety system
Guest Suite available; access to Guest Suites across Churchill Living network
Private off-street parking for owners
Leasehold with long lease remaining (approx. 118 years) — check terms
Notable running costs: service charge £3,391.84pa; ground rent £815.94pa; high local crime rates
This one-bedroom second-floor apartment at Mounts Bay Lodge offers low-maintenance coastal living with a private balcony and marina/ocean views—ideal for a downsizer seeking convenience and community.
The apartment has an open-plan kitchen/living area with integrated appliances, a good-size double bedroom with built-in wardrobe and a shower room with safety handrail. Practical extras include a hallway storage cupboard, lift access nearby and access to a Guest Suite for visiting family. The lodge manager is on site five days a week and a 24-hour Careline system offers additional security and peace of mind.
Service provision is comprehensive: buildings insurance, utilities for communal areas, lift maintenance, garden upkeep and a contingency fund are included in the service charge. Owners also benefit from private car parking and the ability to use Guest Suites across Churchill Living developments.
Important considerations: this is a leasehold retirement property with a sizable annual service charge (£3,391.84) and a higher ground rent (£815.94) payable. The location sits within an area of higher deprivation and reported high crime levels—buyers should assess personal safety and local support options. The building is served by a community heating scheme rather than individual heating, and broadband speeds are average.
Overall, the flat suits an independent retiree wanting a coastal town base with on-site support and communal life, but buyers should factor ongoing running costs, ground rent reviews and local area issues into their decision.
 1 bedroom retirement property for sale in Mounts Bay Lodge, Penzance, TR18 — £250,000 • 1 bed • 1 bath • 576 ft²
 1 bedroom retirement property for sale in Mounts Bay Lodge, Penzance, TR18 — £250,000 • 1 bed • 1 bath • 576 ft² 1 bedroom retirement property for sale in Mounts Bay Lodge, Penzance, TR18 — £310,000 • 1 bed • 1 bath • 588 ft²
 1 bedroom retirement property for sale in Mounts Bay Lodge, Penzance, TR18 — £310,000 • 1 bed • 1 bath • 588 ft² 2 bedroom retirement property for sale in Mounts Bay Lodge, Penzance, TR18 — £499,950 • 2 bed • 1 bath • 755 ft²
 2 bedroom retirement property for sale in Mounts Bay Lodge, Penzance, TR18 — £499,950 • 2 bed • 1 bath • 755 ft² 1 bedroom retirement property for sale in Mounts Bay Lodge, Penzance, TR18 — £220,000 • 1 bed • 1 bath • 529 ft²
 1 bedroom retirement property for sale in Mounts Bay Lodge, Penzance, TR18 — £220,000 • 1 bed • 1 bath • 529 ft² 1 bedroom retirement property for sale in Mounts Bay Lodge, Penzance, TR18 — £275,000 • 1 bed • 1 bath • 505 ft²
 1 bedroom retirement property for sale in Mounts Bay Lodge, Penzance, TR18 — £275,000 • 1 bed • 1 bath • 505 ft² 1 bedroom retirement property for sale in Mounts Bay Lodge, Penzance, TR18 — £199,950 • 1 bed • 1 bath • 520 ft²
 1 bedroom retirement property for sale in Mounts Bay Lodge, Penzance, TR18 — £199,950 • 1 bed • 1 bath • 520 ft²






















































































