Spacious renovated family home with garden and generous parking in village centre.
- Four double bedrooms with flexible ground-floor space for a bedroom or office
- Recently fitted high-spec kitchen with integrated appliances
- Large open family dining lounge with feature media wall
- Fully enclosed rear garden with new paved patio and re-seeded lawn
- Abundance of off-street parking plus attached single garage
- Single family bathroom only for four bedrooms
- Urban village location; local crime levels above average
- EPC rating C; newly renovated throughout
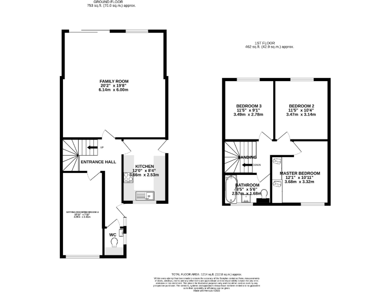
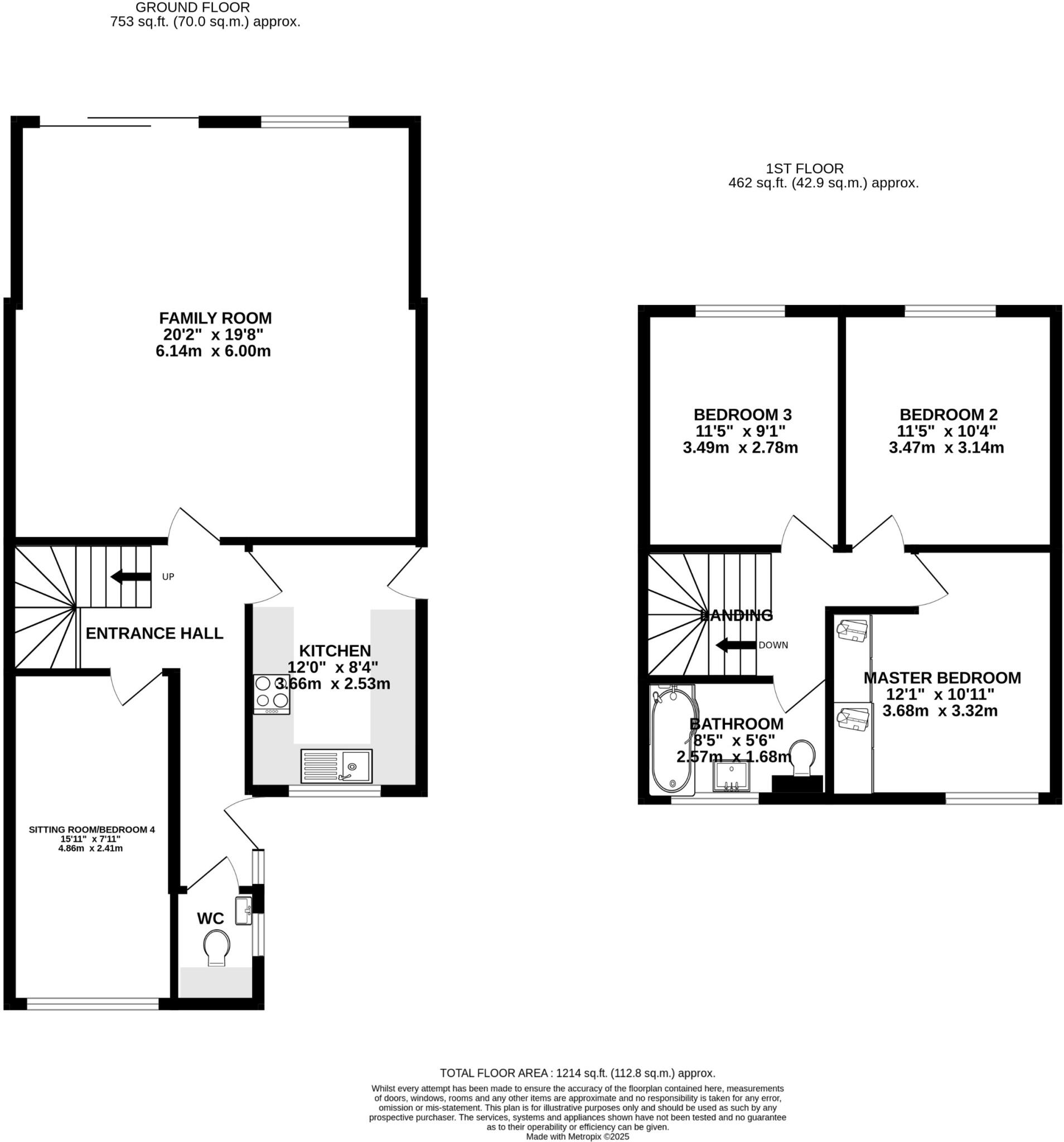
This recently renovated four-bedroom semi offers high-spec family living on Main Street, Newhall. The ground floor’s large open dining lounge and newly fitted contemporary kitchen create a bright, sociable hub for everyday life and entertaining. Oak veneer staircase, glass balustrades and a feature media wall add a modern, quality finish throughout.
Upstairs provides three double bedrooms and a well-appointed family bathroom, while the ground floor layout offers flexible space that could be used as a fourth bedroom or home office. The large, fully enclosed rear garden with a newly refitted paved patio and re-seeded lawn is a practical outdoor space for children and summer entertaining. Driveway parking and an attached single garage deliver abundant off-street parking for several vehicles.
Practical points to note: there is a single family bathroom serving four double bedrooms, which may be a consideration for larger households. The property sits in an urban village setting with average local crime levels above the national baseline; buyers should factor this into location choice. Overall, the house is move-in ready with high-spec finishes, an EPC rating of C and sensible running costs on a cheap council tax band.
4 bedroom detached house for sale in Redhill Lodge Road, Newhall, DE11 — £299,500 • 4 bed • 2 bath • 373 ft²
2 bedroom town house for sale in John Street, Newhall, Swadlincote, Derbyshire, DE11 — £169,950 • 2 bed • 1 bath • 632 ft²
5 bedroom end of terrace house for sale in Parliament Street, Newhall, Swadlincote, Derbyshire, DE11 — £315,000 • 5 bed • 2 bath • 2539 ft²
3 bedroom semi-detached house for sale in Fairfield Crescent, Newhall, DE11 0SX, DE11 — £230,000 • 3 bed • 1 bath • 676 ft²
3 bedroom semi-detached house for sale in The Gables, Newhall, DE11 — £220,000 • 3 bed • 1 bath • 926 ft²
3 bedroom semi-detached house for sale in Coral Lane, Newhall, DE11 — £235,000 • 3 bed • 2 bath • 816 ft²






















































































