Bright open-plan living with concierge and leisure facilities nearby.
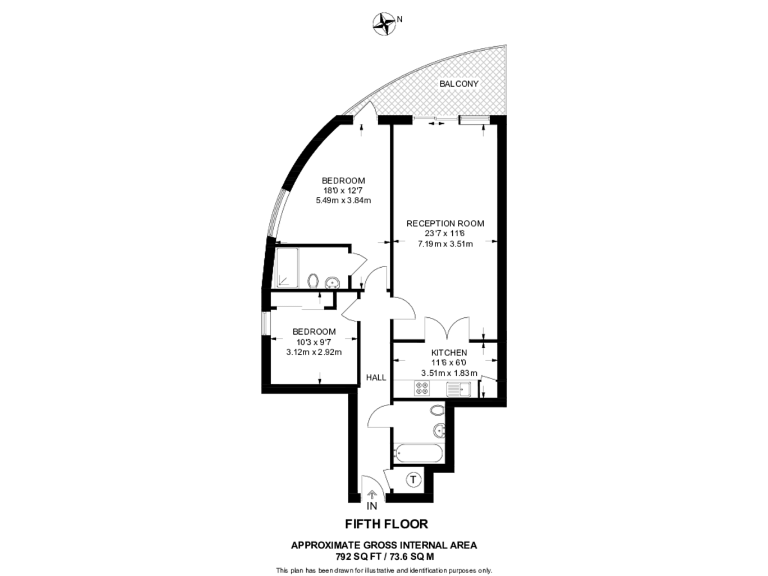
Fifth-floor flat with private balcony and good views
Set on the fifth floor of a modern development, this two-bedroom flat offers bright, open-plan living and a private balcony with pleasant views. The principal bedroom includes an en suite; the second bedroom is well proportioned for guests, a home office or rental use. Lift access, concierge and on-site amenities (pool, gym, spa) add convenience and lifestyle value.
Practical details suit buyers wanting low-maintenance apartment living: off-street parking, double glazing, and easy access to Colindale Underground and local shops including a nearby Tesco Express. The accommodation is electric-heated with room heaters, which keeps installation simple but may mean higher running costs than gas alternatives.
Important leasehold considerations: the property is leasehold with a service charge of approximately £4,600 pa and ground rent around £325 pa—both material costs to factor into affordability. Constructed between 2007–2011, the flat is contemporary in style but buyers should review the lease length and service charge breakdown before committing.
This apartment will suit first-time buyers or professionals wanting a well-specified, low-maintenance home in an inner-city, well-connected area. It also has straightforward rental potential for investors, though ongoing service charges and heating costs should be included in yield calculations.
2 bedroom flat for sale in Charcot Road, Colindale, London, NW9 — £425,000 • 2 bed • 2 bath • 761 ft²
2 bedroom flat for sale in Lismore Boulevard, Colindale, London, NW9 — £450,000 • 2 bed • 1 bath • 692 ft²
2 bedroom flat for sale in Heritage Avenue, Colindale, London, NW9 — £379,950 • 2 bed • 1 bath • 587 ft²
2 bedroom flat for sale in Zenith Close, Colindale, London, NW9 — £400,000 • 2 bed • 2 bath • 792 ft²
2 bedroom flat for sale in Commander Avenue, Colindale, London, NW9 — £390,000 • 2 bed • 1 bath • 653 ft²
1 bedroom flat for sale in Charcot Road, Colindale, London, NW9 — £335,000 • 1 bed • 1 bath • 531 ft²










































































































