Turn-key modern living near schools, shops and the seafront.
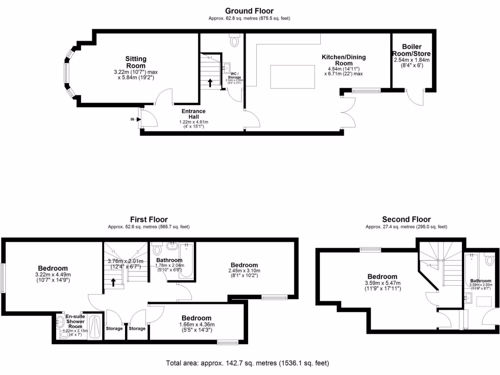
Four bedrooms and three bathrooms, including two en-suites
Newly renovated interior with turn-key presentation
Spacious contemporary kitchen-diner with island and French doors
Smart, low-maintenance private garden
Classic bay windows and high ceilings retain period character
Small plot size; limited outdoor space
Area has high crime and is classified as deprived
Council tax band above average, glazing dated before 2002
Set across three floors, this newly renovated four-bedroom semi-detached house pairs Victorian character with a contemporary finish. A smart open-plan kitchen-diner with island, herringbone flooring and French doors anchors the living space, while two en-suite bathrooms and a further family bathroom provide flexible, modern living for families or sharers.
The property sits centrally in Southsea close to schools, shops and transport, offering excellent mobile signal and fast broadband — practical benefits for working households. The small, low-maintenance garden provides a private outdoor retreat without heavy upkeep, and original bay windows and high ceilings retain period charm.
Buyers should note the wider area has high crime and is classed as deprived; this may affect long-term resale and insurability. Council tax is above average. The home is freehold and described as turn-key, but the glazing dates from before 2002 and the construction notes indicate 2007–2011, so prospective purchasers should verify age and specification details during survey.
Overall, this is a well-presented, characterful family home in a central seaside neighbourhood. It will suit buyers seeking a ready-to-move-in property with modern conveniences and low outdoor maintenance, while those prioritising large private grounds or a quieter low-crime setting may want to explore further.
4 bedroom terraced house for sale in Bellevue Terrace, Southsea, PO5 — £455,000 • 4 bed • 2 bath • 1305 ft²
4 bedroom semi-detached house for sale in Taswell Road, Southsea, PO5 — £600,000 • 4 bed • 1 bath • 1555 ft²
4 bedroom terraced house for sale in Eastern Villas Road, Southsea, PO4 — £685,000 • 4 bed • 2 bath • 2292 ft²
4 bedroom semi-detached house for sale in Southsea, Hampshire, PO5 — £750,000 • 4 bed • 3 bath • 1839 ft²
4 bedroom semi-detached house for sale in Albert Grove, Southsea, PO5 — £500,000 • 4 bed • 2 bath • 1812 ft²
4 bedroom semi-detached house for sale in Campbell Road, Southsea, PO5 — £725,000 • 4 bed • 2 bath • 2331 ft²














































































