Affordable, move-in ready home near Consett town amenities.
Two double bedrooms suitable for couples or sharers
New wiring, plumbing, kitchen and shower room — newly renovated
UPVC double glazing and gas combi boiler, modern heating
Enclosed rear yard with side access; small external footprint
Town-centre location — shops, schools and transport on foot
On-street parking only; no private driveway or garage
Located in a deprived area with higher local crime rates
Coal mining reporting area — further searches recommended
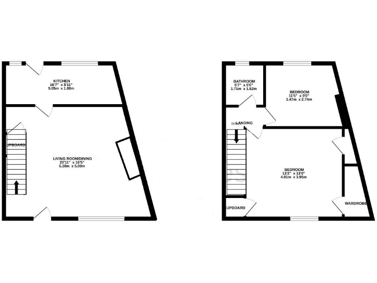
This stone-built end terrace offers an affordable, move-in ready home in central Consett. Recently upgraded throughout, the house combines period character with contemporary finishes: a feature fireplace, new fitted kitchen with integrated appliances, a modern shower room, double glazing and a gas combi boiler. Two double bedrooms and a medium-sized lounge make it practical for a first home or buy-to-let.
Practical positives include an enclosed rear yard with side access, on-street parking, mains services and very low council tax (Band A). The property sits within a short walk of town-centre shops, schools and public transport links, so daily errands and commuting are straightforward. Broadband and mobile signals are reported as good.
Important considerations: the property is in a generally deprived area with higher local crime rates, and the wider streets are traditional working terraces with small plots. The site lies within a coal mining reporting area so prospective buyers should commission appropriate searches and a chartered survey. Parking is on-street only and there is limited outdoor space. These factors should be weighed against the low asking price and the recent internal refurbishment.
2 bedroom terraced house for sale in Edith Street, Consett, County Durham, DH8 — £110,000 • 2 bed • 1 bath • 722 ft²
2 bedroom terraced house for sale in Edith Street, Consett, County Durham, DH8 — £110,000 • 2 bed • 1 bath • 991 ft²
2 bedroom terraced house for sale in Edith Street, Consett, Durham, DH8 — £79,950 • 2 bed • 1 bath • 871 ft²
2 bedroom terraced house for sale in Park Road, Consett, Durham, DH8 5EB, DH8 — £100,000 • 2 bed • 1 bath • 747 ft²
2 bedroom end of terrace house for sale in Garden Place, Consett, Durham, DH8 — £135,000 • 2 bed • 1 bath • 1237 ft²
2 bedroom terraced house for sale in Seymour Street, Consett, Durham, DH8 — £74,950 • 2 bed • 1 bath • 818 ft²














































