DE21 5LL - 4 bed spacious village home in Breadsall, DE21 5LL

View on Property Piper

4 bedroom detached house for sale in Rectory Lane, Breadsall, Derby, DE21

Summary - 14, Rectory Lane, Breadsall DE21 5LL

4 bed 1 bath Detached

Four bedrooms, large gardens and double garages in a sought-after leafy setting.
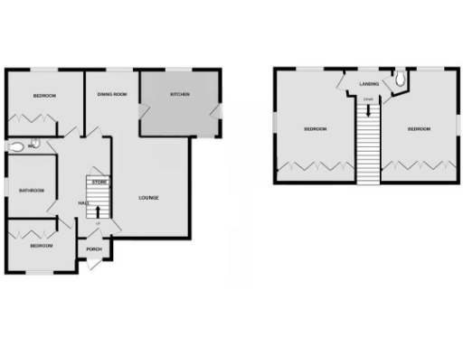
Four double bedrooms across two floors
Set on a generous plot in leafy Breadsall, this deceptively spacious detached house delivers four double bedrooms across two floors and extensive outdoor space. The home is well presented and benefits from UPVC double glazing, a modern Worcester gas boiler and two garages — one with a remote door — making day-to-day living straightforward for a busy household.

Ground-floor living is practical: a large lounge, separate dining room and a fitted kitchen with integrated appliances create sensible family flow. Two ground-floor bedrooms and a well-appointed bathroom with separate WC make this layout flexible for multi-generational living or guests. Upstairs are two further large bedrooms with fitted wardrobes and a wash hand basin each, plus a separate first-floor WC.

The rear garden is a particular asset, attractively enclosed and private with a wide paved patio, lawn and a top seating area — plenty of room for children to play and for summer entertaining. Off-road parking for several cars leads to the two garages, supporting hobbies or secure storage.

Practical points: the house dates from the late 1960s/early 1970s and, while well maintained, may benefit from cosmetic updating to suit modern tastes. There is one full bathroom for four bedrooms, and council tax is above average. Overall, this home suits growing families or those who regularly host visitors and want quiet village living with fast access to Derby.

Property Details

Brochure Descriptions

Image Descriptions

Floorplan Description

Rooms

Textual Property Features

Target Audience

AI Tags

Detected Visual Features

EPC Details

Nearby Schools

Nearest Bars And Restaurants

,,,,}

Nearest General Shops

,,}

Nearest Grocery shops

,,}

Nearest Supermarkets

,,}

Nearest Religious buildings

,,}

Nearest Medical buildings

,,,}

Nearest Airports

}

Nearest Leisure Facilities

,,,,}

Nearest Tourist attractions

,,}

Nearest Train stations

,,,,}

Nearest Bus stations and stops

,,,,}

Nearest Hotels

,,}

Tags

Local Market Stats

Similar Properties

Meta

High Res Images

Compatible Images

Low res Images

Thumbnails

Raw Images

High Res Floorplan Images

Compatible Floorplan Images

Low res Floorplan Images

FloorplanImages Thumbnail

Raw Floorplan Images