PO7 6UP - 2 bedroom flat for sale in Hambledon Road, Waterlooville, P…

View on Property Piper

2 bedroom flat for sale in Hambledon Road, Waterlooville, PO7

Summary - CHERRY TREE APARTMENTS, 82 7 HAMBLEDON ROAD WATERLOOVILLE PO7 6UP

2 bed 1 bath Flat

**Standout Features:**
- Two bedrooms, one bathroom
- Lounge/dining room with Juliet balcony
- Two allocated parking spaces
- Share of freehold
- Chain-free sale
- EPC rating of C
- Well-maintained communal gardens
- Modern double glazing

**Concerns:**
- Above average crime rate in the area
- Service charge of £1,200 annually

Welcome to this charming, purpose-built first-floor apartment located in the heart of Waterlooville, perfect for first-time buyers or investors seeking a no-chain opportunity. Offering a contemporary design, this flat features a light-filled lounge/dining room with a delightful Juliet balcony, and two comfortable bedrooms. Enjoy the convenience of two allocated parking spaces alongside communal gardens to relax outdoors. The property benefits from modern double glazing and efficient gas central heating, ensuring comfort year-round.

Although situated in an affluent area, it's important to note that the crime rate is above average. The annual service charge of £1,200 is standard for maintenance and communal facility upkeep. Positioned close to good-rated primary and secondary schools, as well as various local amenities ranging from sports facilities to dining options, this property invites you to envision a comfortable, convenient lifestyle. Don’t miss out on this exclusive opportunity—viewing is highly recommended!

Property Details

Image Descriptions

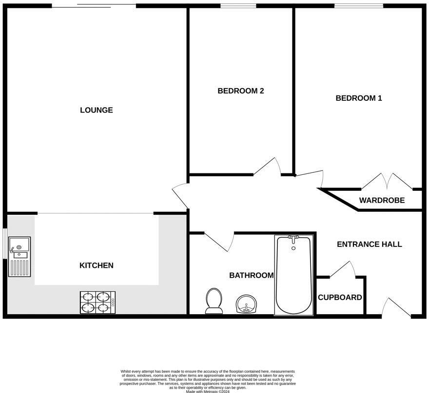
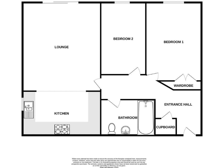
Floorplan Description

Rooms

Textual Property Features

Detected Visual Features

EPC Details

Nearby Schools

Nearest Bars And Restaurants

,,,,}

Nearest General Shops

,,}

Nearest Grocery shops

,,}

Nearest Supermarkets

,,}

Nearest Religious buildings

,,}

Nearest Medical buildings

,,,}

Nearest Airports

}

Nearest Leisure Facilities

,,,,}

Nearest Tourist attractions

,,}

Nearest Train stations

,,,,}

Nearest Bus stations and stops

,,,,}

Nearest Hotels

,,}

Tags

Local Market Stats

Similar Properties

Meta

High Res Images

Compatible Images

Low res Images

Thumbnails

Raw Images

High Res Floorplan Images

Compatible Floorplan Images

Low res Floorplan Images

FloorplanImages Thumbnail

Raw Floorplan Images