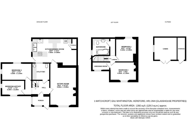
Spacious four-bedroom village home with large garden and cabin.
Stone cottage with exposed beams and original character
This attached stone cottage blends original character with flexible living across four bedrooms and versatile ground-floor space. Exposed beams, an inglenook fireplace and traditional timber detailing give the home period charm, while a spacious kitchen/dining room and utility area support modern family routines. A detached timber cabin and generous enclosed garden extend usable space for working from home, hobbies or entertaining.
Set in the quiet village of Eau Withington with open countryside views and easy access to Hereford, the property suits families seeking rural life without sacrificing local amenities and good school options. The house is offered with no onward chain, which can speed up a move.
Practical notes: the home is double glazed and gas‑central heated, has fibre broadband and driveway parking. It sits on a decent plot and retains many original features, but being a pre‑1900 build means ongoing maintenance and occasional period repairs are likely. The property is semi‑detached and on private drainage (treatment plant), and council tax falls in Band E.
For buyers wanting immediate space with scope to personalise, this cottage presents a characterful base with room to adapt. Investors or purchasers seeking a low‑maintenance modern home should note the age, single family bathroom and likely upkeep associated with older stone properties.
3 bedroom cottage for sale in Nunnington, Hereford, HR1 — £320,000 • 3 bed • 1 bath • 1275 ft²
4 bedroom cottage for sale in The Cottage, Hereford, HR1 — £375,000 • 4 bed • 1 bath • 1250 ft²
3 bedroom detached house for sale in Lumber Lane, Lugwardine, Hereford, HR1 — £300,000 • 3 bed • 1 bath • 700 ft²
3 bedroom house for sale in Withington, Hereford, HR1 — £550,000 • 3 bed • 2 bath • 2000 ft²
3 bedroom cottage for sale in Mansel Lacy, Hereford, HR4 — £650,000 • 3 bed • 3 bath • 1608 ft²
3 bedroom character property for sale in Upper Dormington, Hereford, HR1 — £565,000 • 3 bed • 2 bath • 1267 ft²


































































































