Versatile two-bedroom house with garden, parking and home office.
Bay-fronted living room with high ceilings and feature fireplace
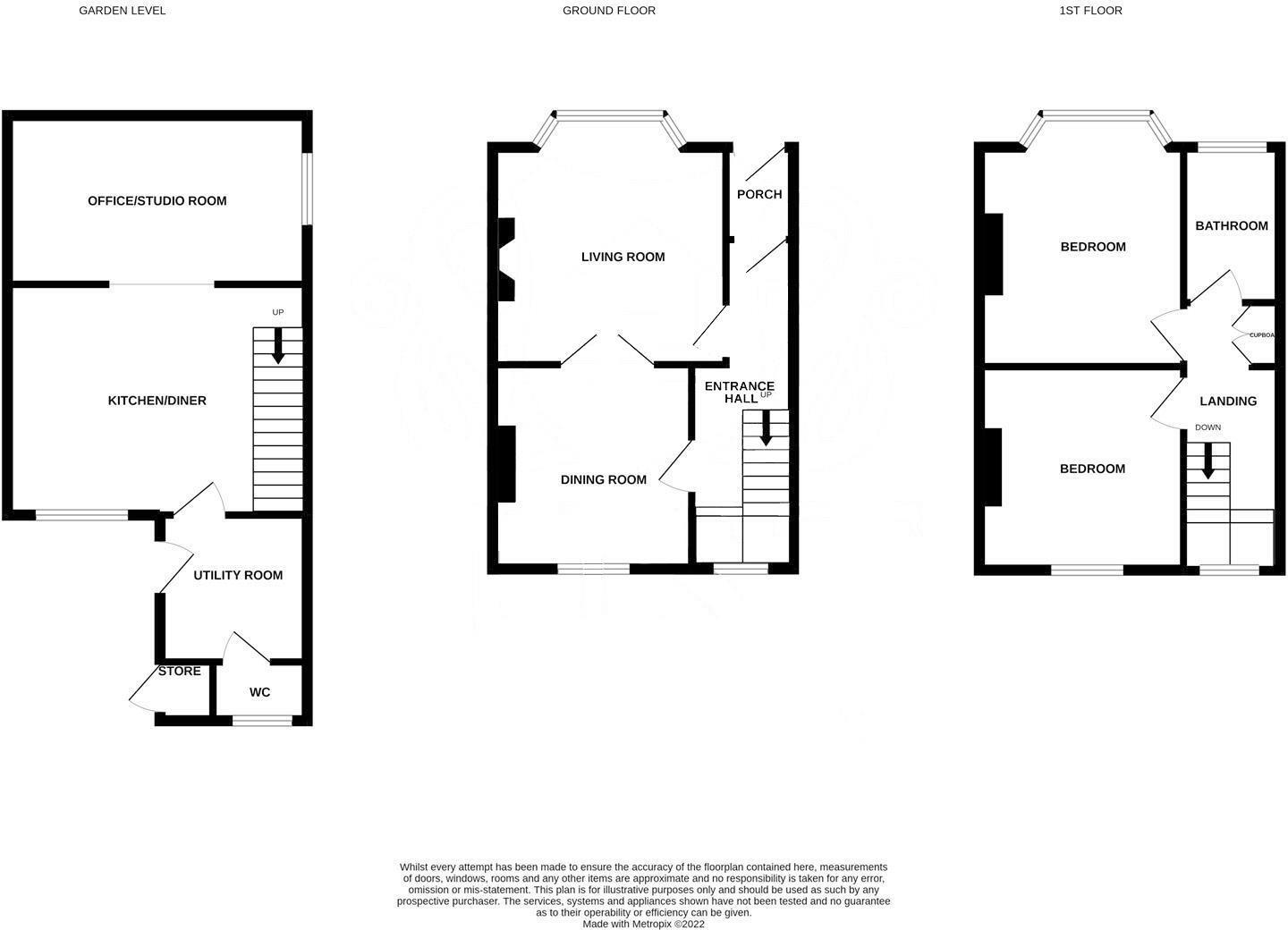
Set across three storeys in a sought-after Clive Vale location, this well-presented semi-detached house blends period character with practical family living. The bay-fronted, dual-aspect living space and high ceilings give the principal rooms a bright, airy feel while the lower level houses a modern fitted kitchen, utility/WC and a flexible office/study or studio room — ideal for home working or hobbies.
Outside there is off-street parking for one car and a tiered rear garden with decking and lawn, providing pleasant outdoor space for dining and play. The property sits close to Hastings Old Town, local schools and woodland walks, making it convenient for family life and daytime leisure.
The house has genuine upgrade potential to increase comfort and value. Constructed before 1900 with solid brick walls, there is likely limited insulation (assumed), and the multi-storey layout may be less suitable for those needing single-level living. Council tax is low and there is no flood risk, but buyers should consider energy-efficiency improvements if desired.
Overall this is a characterful, versatile home for families or buyers wanting a handy base close to Hastings amenities, with an office/studio room that adds practical flexibility and scope for modest updating to personalise the space.
 3 bedroom end of terrace house for sale in Edmund Road, Hastings, TN35 — £425,000 • 3 bed • 1 bath • 1164 ft²
 3 bedroom end of terrace house for sale in Edmund Road, Hastings, TN35 — £425,000 • 3 bed • 1 bath • 1164 ft² 3 bedroom end of terrace house for sale in Athelstan Road, Hastings, TN35 — £425,000 • 3 bed • 1 bath • 1252 ft²
 3 bedroom end of terrace house for sale in Athelstan Road, Hastings, TN35 — £425,000 • 3 bed • 1 bath • 1252 ft² 3 bedroom semi-detached house for sale in Boyne Road, Hastings, TN35 — £315,000 • 3 bed • 1 bath • 797 ft²
 3 bedroom semi-detached house for sale in Boyne Road, Hastings, TN35 — £315,000 • 3 bed • 1 bath • 797 ft² 4 bedroom semi-detached house for sale in Ashburnham Road, Hastings, TN35 — £500,000 • 4 bed • 1 bath • 1432 ft²
 4 bedroom semi-detached house for sale in Ashburnham Road, Hastings, TN35 — £500,000 • 4 bed • 1 bath • 1432 ft² 4 bedroom terraced house for sale in Harold Road, Hastings, TN35 — £625,000 • 4 bed • 3 bath • 1988 ft²
 4 bedroom terraced house for sale in Harold Road, Hastings, TN35 — £625,000 • 4 bed • 3 bath • 1988 ft² 2 bedroom terraced house for sale in Old London Road, Hastings, TN35 — £230,000 • 2 bed • 1 bath • 731 ft²
 2 bedroom terraced house for sale in Old London Road, Hastings, TN35 — £230,000 • 2 bed • 1 bath • 731 ft²


































































































