Period-style brick home with good refurbishment potential close to parks and amenities.
Chain-free freehold three-bedroom terraced house
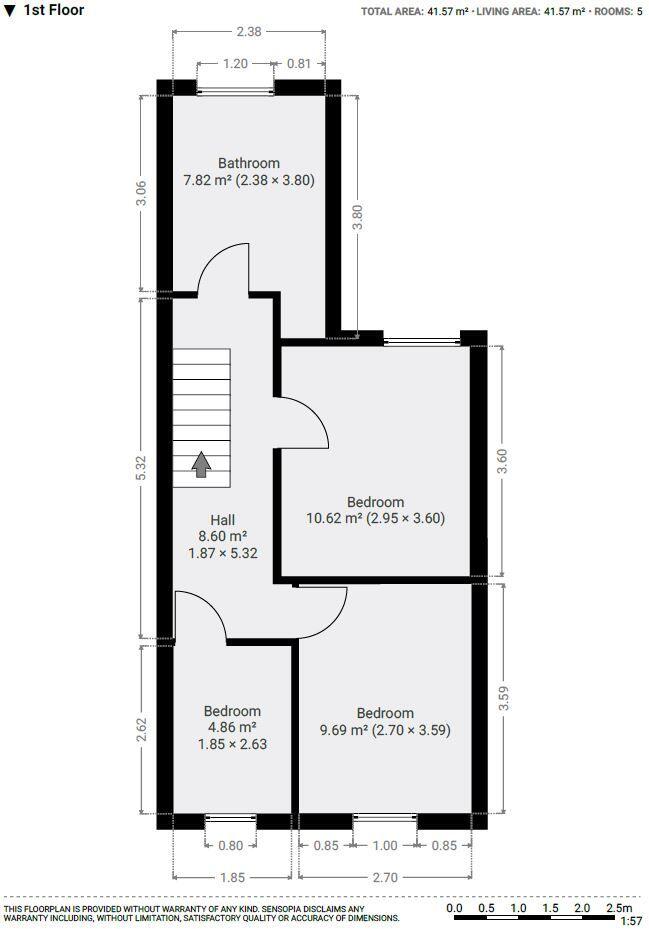
This compact three-bedroom terraced house on Oak Road offers a practical, chain-free purchase with immediate refurbishment potential. The property features a period-style brick façade and a front bay window, two reception rooms and a rear yard suitable for decking or storage. Heating is gas-fired with boiler and radiators and the house is freehold with a low Council Tax Band B.
Internally the layout is straightforward: bay-front living room, separate dining room, fitted kitchen and a family bathroom with bath and separate shower. Room sizes and the overall footprint are modest (total 458 sq ft), making the home well suited to a first-time buyer seeking a live-in project or an investor looking for a value-add let close to local amenities and parks.
The house requires modernization throughout — cosmetic updating is needed in living areas and the kitchen, and the property would benefit from an overall refurbishment to maximise value. There are no notable flood risks, broadband is fast and mobile signal excellent. The small rear yard provides outside space but the plot and rooms remain compact.
Practical nearby amenities include primary and secondary schools (several rated Good), local shops and bus connections. Average local crime and average deprivation reflect the ageing urban community character of the area, so buyers should weigh location advantages against the need for investment in works.
3 bedroom terraced house for sale in Oak Road, Scarborough, YO12 — £160,000 • 3 bed • 1 bath • 875 ft²
3 bedroom terraced house for sale in Oak Road, Scarborough, North Yorkshire, YO12 — £150,000 • 3 bed • 1 bath • 793 ft²
3 bedroom terraced house for sale in Murchison Street, Scarborough, North Yorkshire, YO12 — £120,000 • 3 bed • 1 bath • 975 ft²
3 bedroom semi-detached house for sale in Oak Road, Scarborough, YO12 — £190,000 • 3 bed • 1 bath • 982 ft²
3 bedroom house for sale in Gildercliffe, Scarborough, YO12 — £160,000 • 3 bed • 1 bath • 872 ft²
3 bedroom terraced house for sale in Holly Walk, Scarborough, YO12 — £150,000 • 3 bed • 1 bath • 709 ft²










































































