**Standout Features:**
- **Prime Location**: Situated in a desirable residential area (LU7 3BE), near protected woodland and Leighton Buzzard Golf Course.
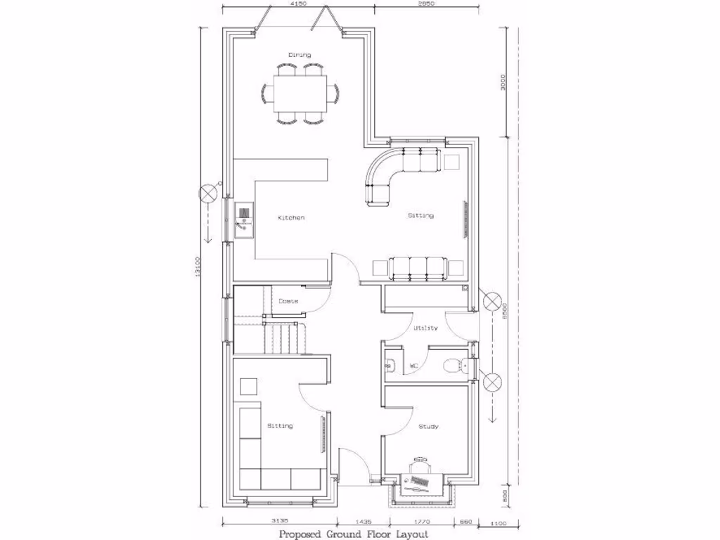
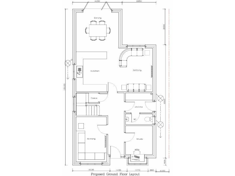
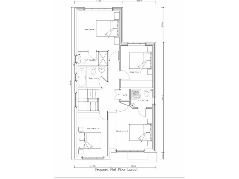
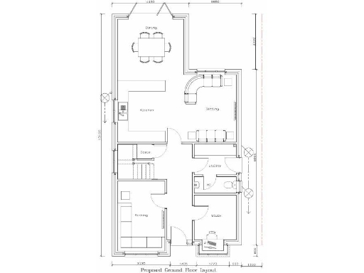
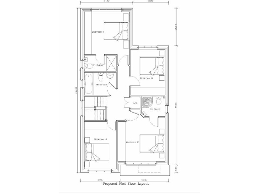
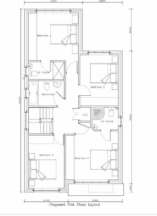
- **Building Potential**: Full planning consent for a spacious three-story home (Planning ref: CB/23/01038/FULL).
- **Room for Growth**: Approx. 1,350 sq ft plot with room for a 5-bedroom family home.
- **Large Garden**: Generous rear garden measuring approximately 58m, perfect for outdoor activities.
- **Parking Available**: Off-street parking for 3-4 vehicles.
- **Education Options**: Access to several well-rated schools.
This exceptional self-build opportunity in a comfortable suburban setting is perfect for families or individuals looking to create their dream home. Approved plans for a modern, spacious three-story residence include an open-plan kitchen, dining, and sitting area, five generously sized bedrooms (three with ensuites), and additional reception rooms, ensuring ample space for family living and entertaining.
Don’t miss this rare chance to invest in a building plot with significant potential for personalization. In addition to a large private garden, you'll enjoy the perks of off-street parking and access to a vibrant community within walking distance of local amenities, including schools, parks, and shops. This property is a blank canvas waiting for you to bring your vision to life. Act quickly, as opportunities like this in such a coveted area are hard to come by!
Land for sale in Rock Lane, Leighton Buzzard, Bedfordshire, LU7 — £115,000 • 1 bed • 1 bath
Plot for sale in Silverbirches Lane, Aspley Heath, Woburn Sands, MK17 — £850,000 • 1 bed • 1 bath • 5000 ft²
Land for sale in Land To The Rear Of 73 Leighton Road, Toddington, Bedfordshire, LU5 — £400,000 • 3 bed • 2 bath • 1800 ft²
Plot for sale in Toddington Road, Harlington, Bedfordshire, LU5 — £400,000 • 1 bed • 1 bath • 2300 ft²
Land for sale in Land to the East of Wood End, Marston Moretaine, Bedfordshire, MK43 — £200,000 • 1 bed • 1 bath
Land for sale in Salford Road, Milton Keynes, MK17 — £525,000 • 1 bed • 1 bath


































