### **Standout Features:**
- Former country club with bar and restaurant
- Detached 3-bedroom owner’s accommodation
- Spectacular views of Abersoch and Cardigan Bay
- Generous plot with extensive landscaping
- Fully equipped and ready to resume trading
- Potential for redevelopment or alternative uses (subject to consents)
- Located near popular holiday parks, ensuring a captive audience
- Late license for alcohol and music
- Recently renovated interiors
### **Summary:**
Nestled in the picturesque surroundings of Abersoch, this versatile property combines commercial potential with residential comfort. The open space encompasses a bar and restaurant that can return to operation immediately, thanks to recent renovations and comprehensive equipment. The detached 3-bedroom owner's accommodation offers a peaceful retreat, ideal for a family or as a rental opportunity, complete with breathtaking southern views.
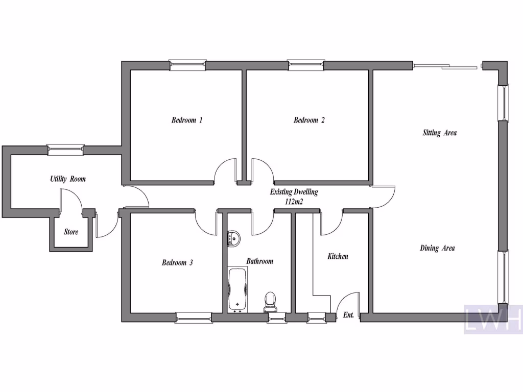
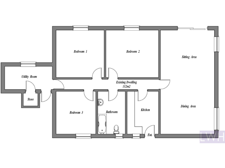
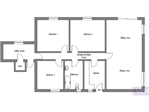
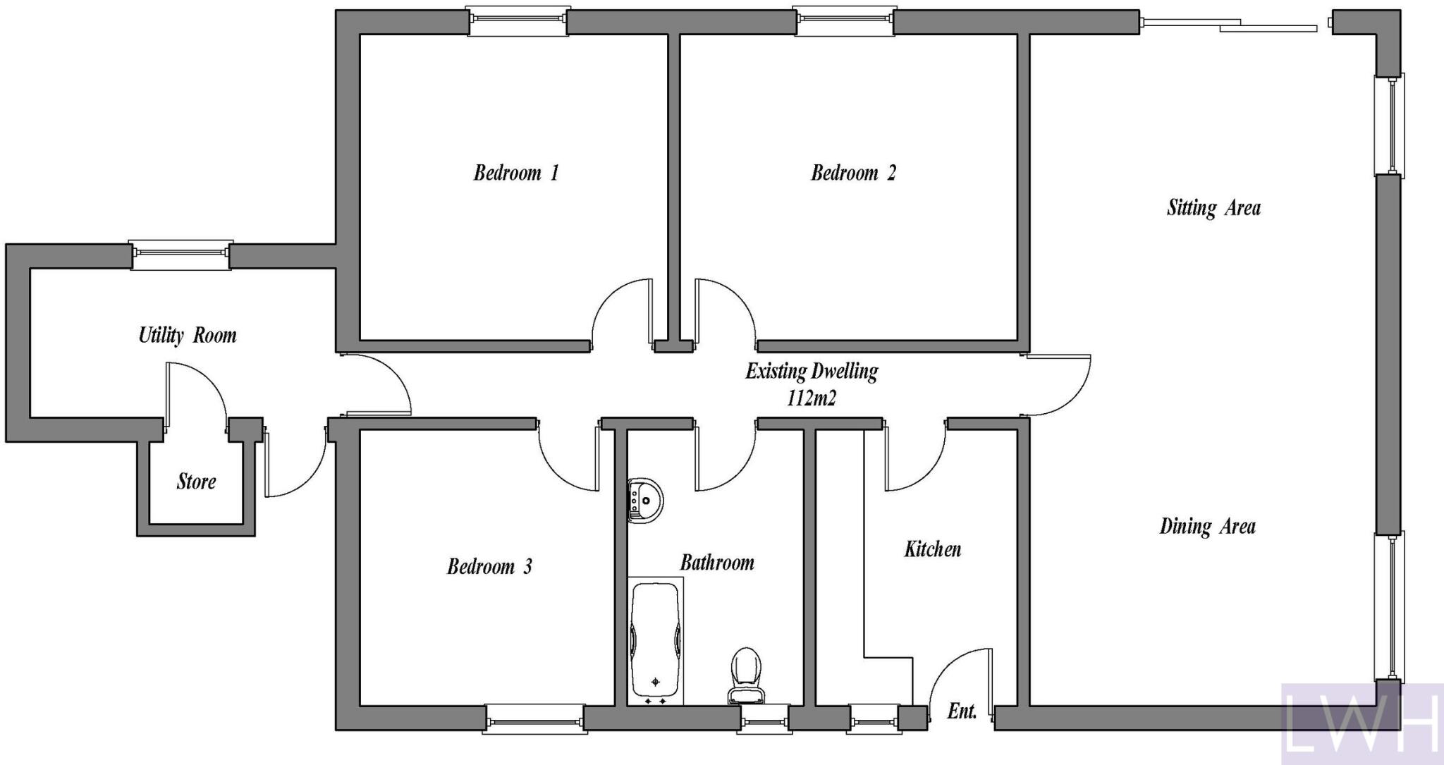
With approximately 2,250 square feet of interior space and additional static caravans on-site, this unique asset boasts significant potential for various uses, making it an attractive investment for entrepreneurs or families looking to develop their dream home. Recent landscaping enhances the massive outdoor area, setting the stage for future expansions or landscaping ambitions. Don't miss your chance to make this property your own; opportunities like this are not available for long!
4 bedroom property for sale in Y Glyn, Abersoch | Country Club and Accommodation, LL53 — £875,000 • 4 bed • 2 bath • 2250 ft²
4 bedroom detached bungalow for sale in Morfa Bychan, Porthmadog, Gwynedd, LL49 — £450,000 • 4 bed • 3 bath • 2250 ft²
High street retail property for sale in 26 High Street, Criccieth, LL52 — £475,000 • 8 bed • 4 bath • 4542 ft²
8 bedroom detached house for sale in Ffordd Newydd, Harlech, Gwynedd, LL46 — £800,000 • 8 bed • 8 bath • 2788 ft²
4 bedroom semi-detached house for sale in Ty Pen Y Graig, Llangwnadl, Pwllheli, LL53 — £375,000 • 4 bed • 2 bath • 1550 ft²
4 bedroom detached house for sale in Morfa Bychan, Porthmadog, Gwynedd, LL49 — £500,000 • 4 bed • 2 bath • 1765 ft²


























































































































































