Rare architect-designed detached family home on a large private plot with outstanding views..
Architect-designed stone detached on very large private grounds
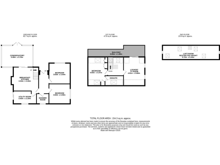
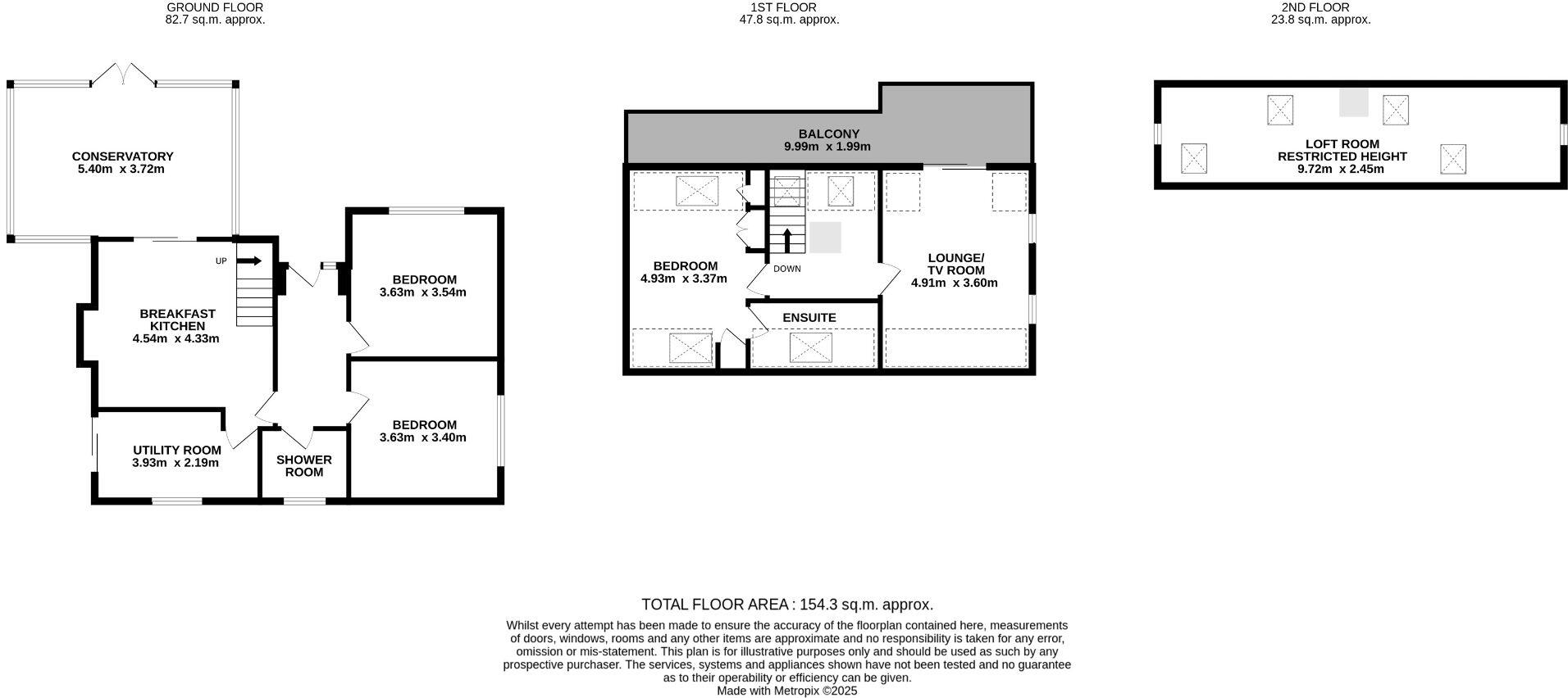
Three double bedrooms and two bathrooms across split levels
First-floor lounge with large balcony and long-distance views
Shaker-style breakfast kitchen, large conservatory and utility room
Useful roof space for storage or occasional room (ladder access)
Detached rear garage; long private drive with gated access
Mains gas central heating, double glazing and alarm fitted
Council tax classed as expensive; buyers should verify services
Set behind a long private drive in a quiet Thackley setting, this individually architect-designed stone detached home offers generous, flexible family living across split levels. The house sits in very large private grounds with established planting, multiple patio areas and a rear detached garage — ideal for cars, storage or a workshop. The first-floor lounge opens onto a broad balcony with long-distance views, creating a bright social hub for evening entertaining.
Accommodation includes three double bedrooms and two bathrooms arranged over both floors, plus a useful landing area that works well as a study. The high-quality Shaker-style breakfast kitchen, large front conservatory and separate utility room add everyday convenience. A roof space (accessed by ladder) provides substantial storage and could be adapted as an occasional room subject to approvals.
Practical details are straightforward: mains gas central heating with a modern boiler, double glazing and a fitted alarm system. The property was built in the late 1960s/early 1970s and has been maintained to a high standard, though prospective buyers should arrange their own checks on services and measurements. Council tax is listed as expensive and running costs should be considered when budgeting.
This home will suit families or professionals who value privacy, outdoor space and views while remaining within easy reach of local schools, shops and commuter links. Early viewing is recommended to appreciate the plot, layout and potential offered by this distinctive property.
 4 bedroom detached bungalow for sale in Ballantyne Road, Thackley,, BD10 — £425,000 • 4 bed • 1 bath • 2013 ft²
 4 bedroom detached bungalow for sale in Ballantyne Road, Thackley,, BD10 — £425,000 • 4 bed • 1 bath • 2013 ft² 4 bedroom detached house for sale in Windhill Old Road  Thackley, BD10 — £415,000 • 4 bed • 3 bath • 2038 ft²
 4 bedroom detached house for sale in Windhill Old Road  Thackley, BD10 — £415,000 • 4 bed • 3 bath • 2038 ft² 3 bedroom detached house for sale in Little Cote, Thackley,, BD10 — £335,000 • 3 bed • 2 bath • 980 ft²
 3 bedroom detached house for sale in Little Cote, Thackley,, BD10 — £335,000 • 3 bed • 2 bath • 980 ft² 3 bedroom semi-detached house for sale in Thackley View, Thackley,, BD10 — £287,500 • 3 bed • 2 bath • 971 ft²
 3 bedroom semi-detached house for sale in Thackley View, Thackley,, BD10 — £287,500 • 3 bed • 2 bath • 971 ft² 2 bedroom semi-detached house for sale in Ballantyne Road, Thackley,, BD10 — £215,000 • 2 bed • 1 bath • 669 ft²
 2 bedroom semi-detached house for sale in Ballantyne Road, Thackley,, BD10 — £215,000 • 2 bed • 1 bath • 669 ft² 4 bedroom semi-detached house for sale in Kingston Grove, Thackley,, BD10 — £319,950 • 4 bed • 2 bath • 1546 ft²
 4 bedroom semi-detached house for sale in Kingston Grove, Thackley,, BD10 — £319,950 • 4 bed • 2 bath • 1546 ft²














































































































































































