Affordable, low-maintenance flat near town and station — ideal for first-time buyers or investors..
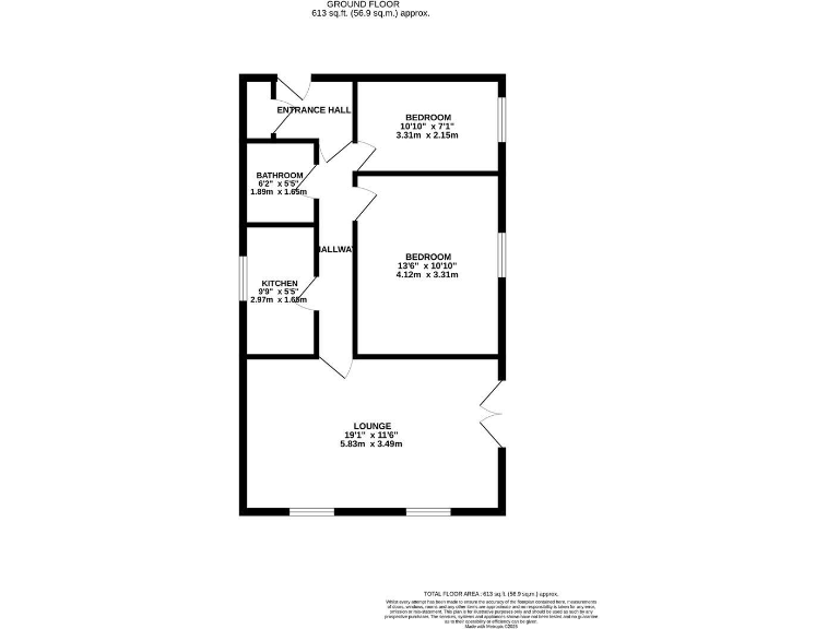
Ground-floor two-bedroom flat, 613 sq ft
A compact ground-floor two-bedroom flat offering immediate, low-maintenance living just minutes from Northampton town centre and the train station. The lounge brightens with a Juliet balcony and large windows; a separate kitchen, family bathroom and generous internal storage make the layout practical for everyday life. Low service charge and ground rent, plus no onward chain, keep running costs and moving complexity down.
This home suits a first-time buyer seeking affordability and convenience or an investor after a city-centre rental. At about 613 sq ft the accommodation is modest but useable; permit parking is available and public transport, shops and leisure facilities are an easy walk away. There’s a new children’s playground planned nearby, and local primary schools include Good-rated options, which may appeal to young families.
Buyers should be aware of material negatives: the property sits in an inner-city, very deprived area with a very high recorded crime level, which will affect resale and rental perceptions. The flat is leasehold with approximately 93 years remaining — acceptable today but worth checking mortgage lender and future lease-extension costs. Room sizes are small-to-average, so the home is best for singles, couples or investors rather than those needing generous living space.
2 bedroom apartment for sale in Latymer Court, Northampton, NN1 — £147,000 • 2 bed • 1 bath • 529 ft²
2 bedroom flat for sale in Latymer Court, Northampton, NN1 — £150,000 • 2 bed • 1 bath • 498 ft²
2 bedroom flat for sale in West Cotton Close, Northampton, NN4 — £140,000 • 2 bed • 1 bath • 700 ft²
1 bedroom flat for sale in Lion Court, Northampton, NN4 — £100,000 • 1 bed • 1 bath • 419 ft²
2 bedroom apartment for sale in West Cotton Close, Northampton, NN4 — £145,000 • 2 bed • 1 bath • 563 ft²
1 bedroom flat for sale in Delta House, St Andrews Street, NN1 — £95,000 • 1 bed • 1 bath • 514 ft²






































