LA9 6FU - 2 bedroom retirement property for sale in Shap Road, Kendal…

View on Property Piper

2 bedroom retirement property for sale in Shap Road, Kendal, LA9 6FU , LA9

Summary - Flat 14, Alavana Place, Shap Road LA9 6FU

2 bed 1 bath Retirement Property

**Standout Features:**
- Newly built two-bedroom retirement apartment exclusively for residents aged over 60
- Investment opportunity through a shared ownership scheme
- Private patio and beautifully landscaped gardens
- Modern kitchen with integrated appliances and utility cupboard
- Spacious living area filled with natural light
- En-suite shower room in the master bedroom
- Guest suite available for visitors
- Excellent local amenities and a friendly on-site manager

**Property Summary:**
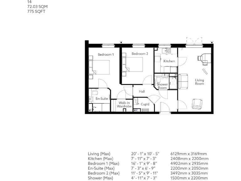
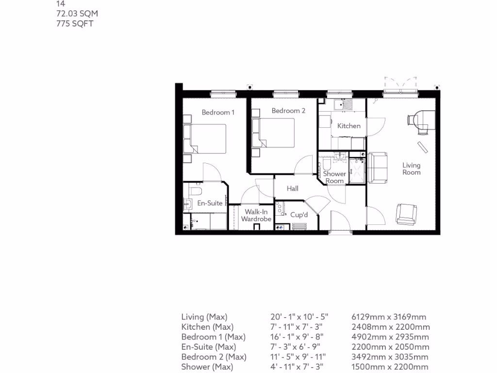
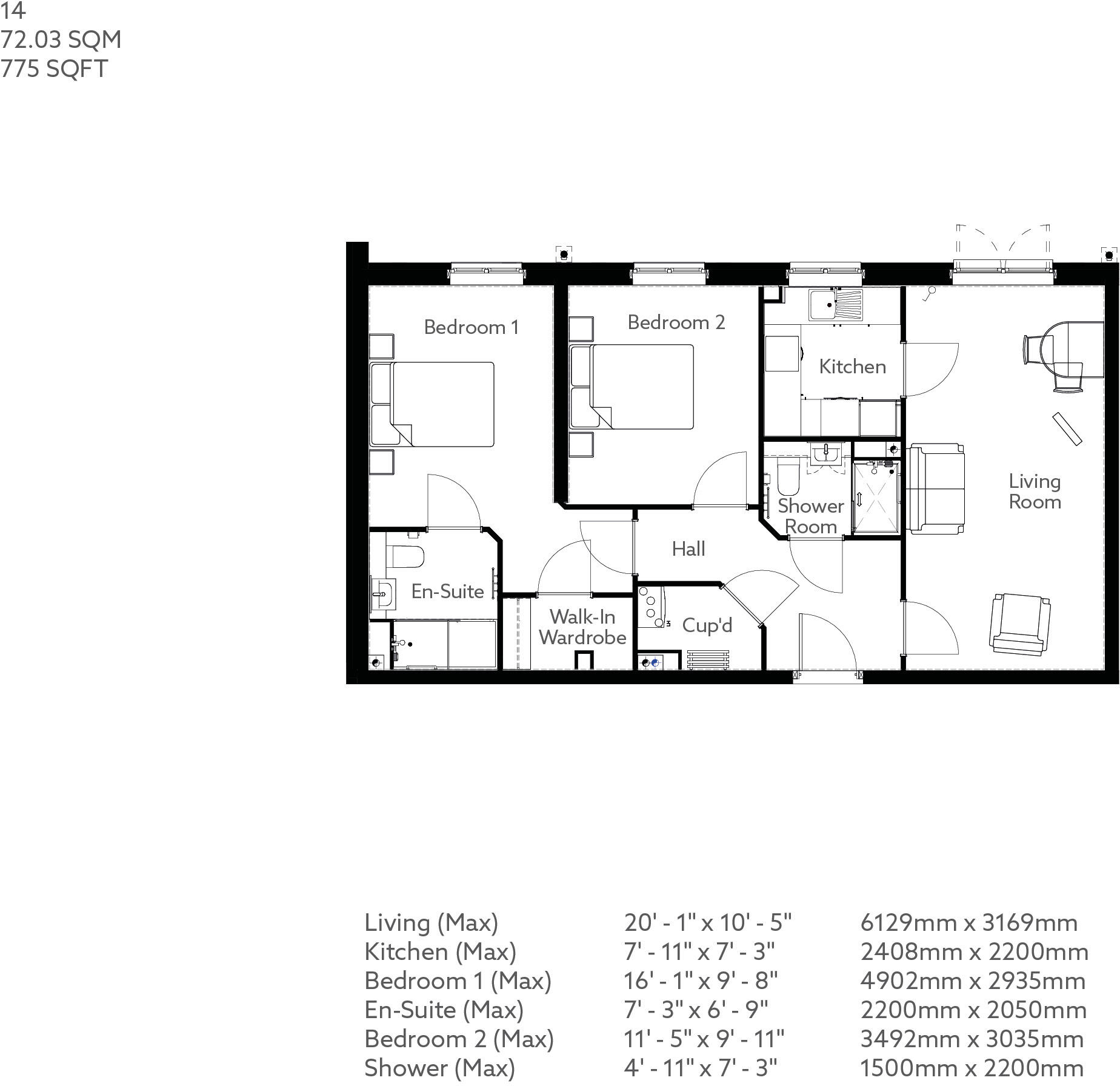
Discover comfort and community at this newly developed two-bedroom retirement apartment situated in Kendal's Alavana Place. Spanning 775 square feet, Apartment 14 features a bright open-plan living space with access to a private patio, perfect for enjoying the beautifully landscaped gardens. The modern kitchen is equipped with integrated appliances, while the master bedroom boasts a walk-in wardrobe and en-suite shower room.

This retirement property offers an inviting atmosphere tailored for the over 60s, complete with a communal lounge and guest parking. With local shops and amenities just a stone's throw away, you will enjoy both convenience and tranquility. This shared ownership opportunity provides flexibility for future investment, with prices starting at just £147,500 for a 50% share. Don't miss out on this chance to secure a unique and comfortable living space—call today to discover more about making this your new home!

Property Details

Brochure Descriptions

Image Descriptions

Floorplan Description

Rooms

Textual Property Features

Detected Visual Features

EPC Details

Nearby Schools

Nearest Bars And Restaurants

,,,,}

Nearest General Shops

,,}

Nearest Grocery shops

,,}

Nearest Supermarkets

,,}

Nearest Religious buildings

,,}

Nearest Medical buildings

,,,}

Nearest Leisure Facilities

,,,,}

Nearest Tourist attractions

,,}

Nearest Train stations

,,,,}

Nearest Bus stations and stops

,,,,}

Nearest Hotels

,,}

Tags

Local Market Stats

AirBnB Data

Similar Properties

Meta

High Res Images

Compatible Images

Low res Images

Thumbnails

Raw Images

High Res Floorplan Images

Compatible Floorplan Images

Low res Floorplan Images

FloorplanImages Thumbnail

Raw Floorplan Images