KT12 3LJ - 1 bedroom terraced house for sale in Etheridge Court, Amble…

View on Property Piper

1 bedroom terraced house for sale in Etheridge Court, Ambleside Avenue, Walton On Thames, KT12

Summary - ETHERIDGE COURT 2 AMBLESIDE AVENUE WALTON-ON-THAMES KT12 3LJ

1 bed 1 bath Terraced

**Standout Features:**
- Freehold one-bedroom terraced house
- Recently renovated and modernized throughout
- Sunny south-west facing landscaped rear garden
- Allocated off-street parking accessible via the garden
- Close proximity to Walton-on-Thames mainline station and town center
- Gas central heating and double glazing

This beautifully renovated one-bedroom freehold house is perfect for first-time buyers or investors looking for a move-in-ready property in a vibrant community. The home has been thoroughly modernized, boasting an inviting living space enhanced by natural light thanks to thoughtfully placed skylights. The compact yet functional kitchen features integrated appliances, making daily living a breeze.

The landscaped rear garden, facing south-west, provides an appealing outdoor escape, ideal for relaxation or entertaining. Enjoy the convenience of private off-street parking designed for ease of access, further adding to the property's allure.

Located in a desirable area of Walton-on-Thames, this home is just a mile from the mainline station, ensuring easy access to London. The supportive community atmosphere and nearby amenities, including schools rated good by Ofsted, make this property an outstanding choice for small households or as a starter home. Act quickly; properties of this quality in such a sought-after location don’t last long!

Property Details

Brochure Descriptions

Image Descriptions

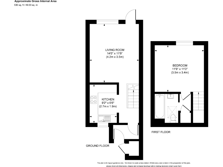
Floorplan Description

Rooms

Textual Property Features

Detected Visual Features

EPC Details

Nearby Schools

Nearest Bars And Restaurants

,,,,}

Nearest General Shops

,,}

Nearest Grocery shops

,,}

Nearest Supermarkets

,,}

Nearest Religious buildings

,,}

Nearest Medical buildings

,,,}

Nearest Airports

,}

Nearest Leisure Facilities

,,,,}

Nearest Tourist attractions

,,}

Nearest Train stations

,,,,}

Nearest Bus stations and stops

,,,,}

Nearest Hotels

,,}

Tags

Local Market Stats

AirBnB Data

Meta

High Res Images

Compatible Images

Low res Images

Thumbnails

Raw Images

High Res Floorplan Images

Compatible Floorplan Images

Low res Floorplan Images

FloorplanImages Thumbnail

Raw Floorplan Images