**Standout Features:**
- Beautifully renovated, former village chapel dating back to 1850
- Set in peaceful Brinkhill village within the Lincolnshire Wolds AONB
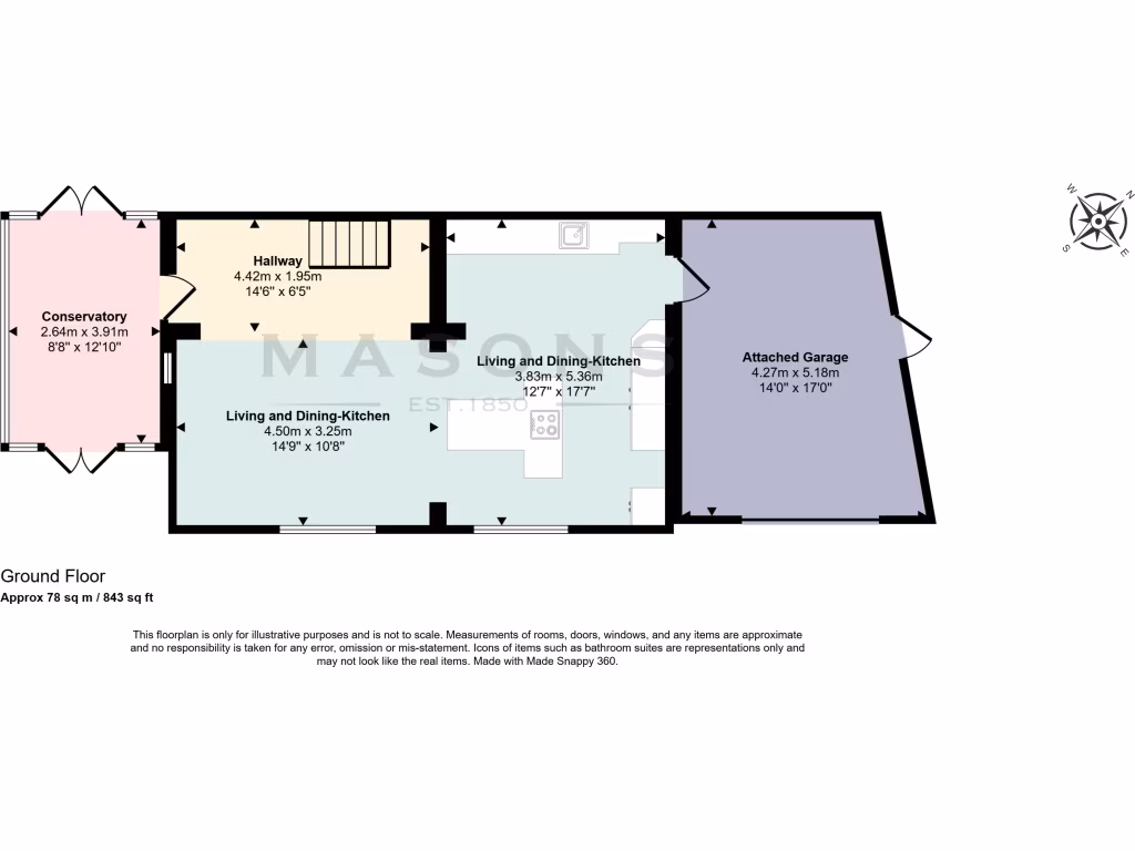
- Spacious open-plan living area with abundant natural light
- Two large double bedrooms with modern ensuite shower rooms
- Fully equipped contemporary kitchen with integrated appliances
- Attached garage/workshop with EV charging point
- Insulated garden cabin, ideal for a home office or studio
- Secluded garden with stream, enhancing tranquility
- Modern security features, including CCTV and alarm systems
**Notable Concerns:**
- The property requires ongoing maintenance typical of rural settings
- Older exterior elements present, though well-maintained
**Summary:**
Chapel Cottage offers a rare blend of historic charm and contemporary comfort, perfectly situated in the scenic village of Brinkhill. This remarkable property has undergone extensive renovations, resulting in an open and airy living space where sleek modern designs meet the rustic beauty of its chapel origins. The two spacious double bedrooms with stylish ensuite shower rooms ensure privacy and luxury for family or guests. Enjoy alfresco moments in the secluded garden, complete with a tranquil stream and an insulated garden cabin that doubles as a home office or studio, catering to remote work needs.
The property also features an attached garage with EV charging capabilities, making it ideal for eco-conscious buyers. With its peaceful surroundings, low crime rate, and access to local amenities, this turn-key home is a perfect opportunity for families seeking a serene lifestyle without sacrificing modern conveniences. Don't miss out on this unique residence—schedule a viewing today to experience its exceptional ambiance firsthand!
4 bedroom cottage for sale in The Old Chapel, Waithe Lane, Brigsley, Grimsby, DN37 — £499,950 • 4 bed • 2 bath • 1526 ft²
3 bedroom detached house for sale in Old Church Lane, Great Steeping, Spilsby, PE23 — £375,000 • 3 bed • 2 bath • 1246 ft²
2 bedroom detached house for sale in Low Gate Road, Scremby, PE23 — £370,000 • 2 bed • 2 bath • 571 ft²
4 bedroom detached house for sale in Church Lane, Saltfleetby LN11 7TU, LN11 — £450,000 • 4 bed • 2 bath • 3829 ft²
4 bedroom detached house for sale in Scrane End, Freiston, Boston PE22 0LT, PE22 — £280,000 • 4 bed • 2 bath • 1400 ft²
4 bedroom detached house for sale in Chapel Lane, Donington-on-Bain LN11 9TN, LN11 — £600,000 • 4 bed • 4 bath • 3888 ft²






















































































































































































