Large shop with consented residential conversion above, ideal for developers or investor landlords.
Freehold commercial building with vacant possession
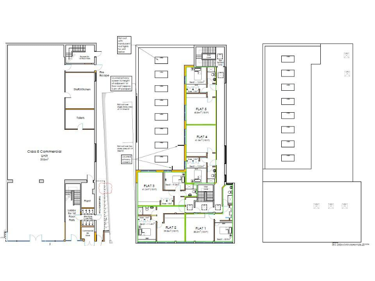
A substantial freehold retail building occupying a prominent West Street position in Fareham, offered with vacant possession and planning consent to create five one‑bed flats above a retained commercial ground floor. The property benefits from very high footfall, excellent transport links and nearby national occupiers, giving instant street presence for a new trading tenant or repeat retail rental.
Planning consent (P/24/0263/FP) already permits a ground‑floor extension, first‑floor rear extension and change of use of the upper floors to 5 x one‑bed flats while retaining a 310 sq m commercial unit at ground level, simplifying the development route for a buy‑and‑refurbish investor or small developer. The ground floor’s set‑back and existing overhang provide scope for a refreshed shopfront and external seating or cycle cover subject to permissions.
The building is mid‑20th century and will require refurbishment to realise its full rental or sales potential; the upper‑floor accommodation is currently configured as self‑contained offices and will need conversion work to meet residential standards. EPC D81 and above‑average local crime should be factored into operating costs and specifications. VAT is payable and offers are invited in excess of £500,000 for the freehold with vacant possession.
Shop for sale in 113 West Street, Fareham, Hampshire, PO16 0DU, PO16 — £275,000 • 1 bed • 1 bath • 1096 ft²
High street retail property for sale in 201 West Street, Fareham, PO16 0EN, PO16 — £130,000 • 1 bed • 1 bath • 537 ft²
Mixed use property for sale in 187 West Street, Fareham, Hampshire, PO16 — £195,000 • 1 bed • 1 bath • 1112 ft²
High street retail property for sale in 98 West Street, Fareham, PO16 0EP, PO16 — £170,000 • 1 bed • 1 bath • 1393 ft²
2 bedroom apartment for sale in West Street, Fareham, PO16 — £400,000 • 2 bed • 1 bath • 1067 ft²
High street retail property for sale in West Street, Havant, Hampshire, PO9 — £575,000 • 1 bed • 1 bath • 5830 ft²










