Spacious one-bedroom near Brixton Tube ideal for first-time buyers or lettings..
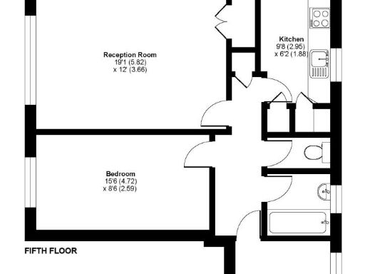
- Spacious 614 sq ft one-bedroom fourth-floor flat with lift access
- Generous reception room and separate WC off bathroom
- Double glazing and neutral décor, ready to occupy or rent
- Community heating and mains gas; service charges likely apply
- Leasehold tenure — will be sold at online auction on 17 Dec 2025
- Mid-20th-century system-built block with external insulation
- Located moments from Brixton Hill and nearby rail/Tube links
- Area shows higher deprivation; consider rental demand and resale risk
Bright one-bedroom fourth-floor flat with lift access, offering a generous 614 sq ft of living space and a spacious reception room. The apartment is neutrally presented and benefits from double glazing and communal heating on a community scheme, making it ready to move into or let.
The property will be sold at online auction on 17 December 2025; buyers should note this is a leasehold sale. The block is a mid-20th-century system-built construction with external insulation, which can mean higher communal maintenance or specific repair requirements in future.
Located just off Brixton Hill, the flat is close to Brixton Underground and National Rail stations, local shops, cafés and good primary schools. The neighbourhood is a busy inner-city area with average crime levels and higher local deprivation; this is reflected in the price and the potential for rental demand or future value uplift with targeted refurbishment.
1 bedroom flat for sale in Kett Gardens, Brixton, London, SW2 — £180,000 • 1 bed • 1 bath • 614 ft²
1 bedroom flat for sale in Gala Court, London Road, Thornton Heath, Surrey, CR7 — £180,000 • 1 bed • 1 bath • 492 ft²
1 bedroom flat for sale in Belgrave House, Clapham Road, London, SW9 — £265,000 • 1 bed • 1 bath • 466 ft²
2 bedroom flat for sale in Eythorne Road, London, SW9 — £425,000 • 2 bed • 1 bath • 676 ft²
2 bedroom flat for sale in Kellett Road, Brixton, London, SW2 — £650,000 • 2 bed • 1 bath • 792 ft²
1 bedroom flat for sale in Brixton Hill, Brixton Hill, SW2 — £300,000 • 1 bed • 1 bath • 434 ft²






































































