Contemporary family home with 4 bedrooms, loft conversion and two parking spaces.
Chain free with remainder of NHBC guarantee
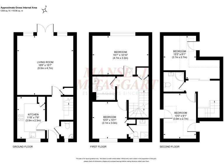
Well presented four-bedroom end-of-terrace with a 2024 loft conversion, offered chain free and with the remainder of the NHBC guarantee. Built in 2019 by Croudace Homes, the house combines contemporary fittings with practical family spaces: an entrance hall and cloakroom, open living/dining room opening to the garden, a modern fitted kitchen and two ensuite bathrooms plus a family bathroom. Two allocated parking spaces sit directly to the front.
The loft conversion adds two bedrooms and a shower room, useful for older children, guests or a home office. The rear garden is low-maintenance (Astroturf and patio) and there are two modern storage units. The property benefits from gas central heating, uPVC double glazing, EPC B and an affordable annual estate charge of £360.
Notable practical points: the rear garden faces north, so it receives less direct sun; the second-floor bedrooms have eaves storage and reduced head height under the roofline; broadband speeds in the area are reported as slow. Both parking spaces are numbered 1, which may cause occasional visitor confusion. Council Tax Band C and no ongoing chain make this a straightforward move for families or buyers seeking ready-to-live-in accommodation.
5 bedroom detached house for sale in Bonnet Lane, Burgess Hill, West Sussex, RH15 — £875,000 • 5 bed • 4 bath • 3532 ft²
4 bedroom detached house for sale in Bonnet Lane, Burgess Hill, RH15 — £635,000 • 4 bed • 3 bath • 1589 ft²
4 bedroom detached house for sale in Summerfold Place, Burgess Hill, RH15 — £600,000 • 4 bed • 3 bath • 1281 ft²
4 bedroom town house for sale in Curf Way, Burgess Hill, RH15 — £550,000 • 4 bed • 2 bath • 1419 ft²
2 bedroom end of terrace house for sale in Calvert Link, Faygate, RH12 — £350,000 • 2 bed • 2 bath • 766 ft²
4 bedroom semi-detached house for sale in Craftmans Crescent, BURGESS HILL, RH15 — £525,000 • 4 bed • 3 bath • 1657 ft²


















































































