High-spec comfort with generous outdoor living for growing families.
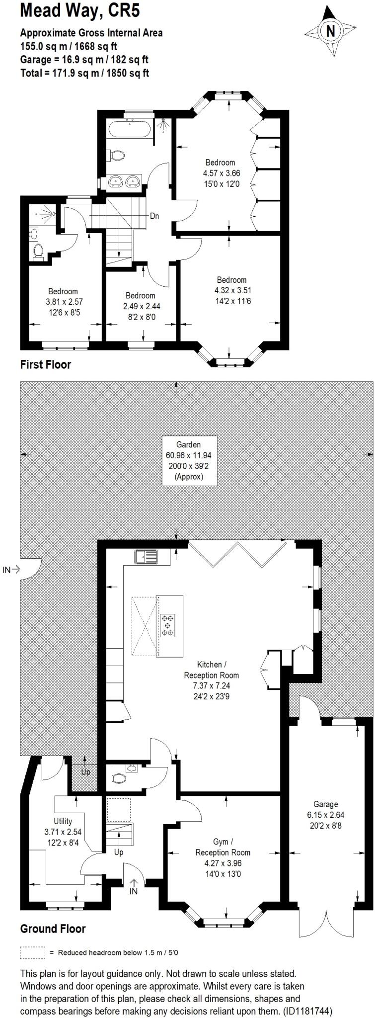
4 bedrooms with master en suite and two bathrooms
Underfloor heating, heat pump and integrated air conditioning
High-spec Siemens kitchen appliances and boiling water tap
Large landscaped multi-level garden with oak pergola and patio
Utility/boot room, in-house gym and substantial storage
Off-street parking for 2–3 cars; newly completed driveway (Autumn 2023)
Internal size described as average despite large plot
Council tax rated expensive; loft only partially boarded
This four-bedroom detached house on Mead Way blends modern, energy-efficient systems with practical family spaces. Built in 2023, it benefits from air conditioning, a heat pump, underfloor heating throughout and Siemens kitchen appliances — features that cut running costs and add day-to-day convenience. The large, multi-level garden and extensive patio with an oak pergola create a private outside entertaining space. Off-street parking for two to three cars and a substantial utility/boot room add practical family storage.
Internally the layout suits busy households: a kitchen-diner with boiling-water tap, built-in wine cooler, reed glass bar and study area; an in-house gym; and a master bedroom with en suite. The home is finished to a high standard throughout, with LED lighting, marble worktops in the cloakroom, digital thermostatic bath fills and heated towel walls in the bathrooms.
Notable drawbacks are factual and important. The property has just two bathrooms for four bedrooms which may require adaptation for larger families. Council tax is described as expensive. The house’s internal footprint is described as average sized despite the large plot, so buyers seeking very large rooms should view to confirm space. The loft is only partially boarded.
Located in an affluent Coulsdon neighbourhood with very low crime and fast broadband, the house sits close to several primary and secondary schools (most rated Good by Ofsted), local amenities and public transport. For buyers wanting a modern, low-maintenance family home with strong environmental features and generous outdoor space, this property offers immediate comfort with scope to adapt services and bedrooms to personal needs.
5 bedroom detached house for sale in Mead Way, Coulsdon, CR5 — £825,000 • 5 bed • 2 bath • 1890 ft²
4 bedroom semi-detached house for sale in Ruxton Close, Coulsdon, CR5 — £750,000 • 4 bed • 3 bath • 1475 ft²
3 bedroom detached house for sale in Hillside Road, Coulsdon, CR5 — £700,000 • 3 bed • 2 bath • 1358 ft²
5 bedroom detached house for sale in Caversham Close, Coulsdon, CR5 — £1,395,000 • 5 bed • 5 bath • 3207 ft²
5 bedroom house for sale in Woodplace Lane, Coulsdon, CR5 — £1,150,000 • 5 bed • 3 bath • 2382 ft²
4 bedroom semi-detached house for sale in Chinthurst Mews, Coulsdon, CR5 — £600,000 • 4 bed • 3 bath • 1569 ft²


































































