Spacious country-edge living with large gardens and solar income.
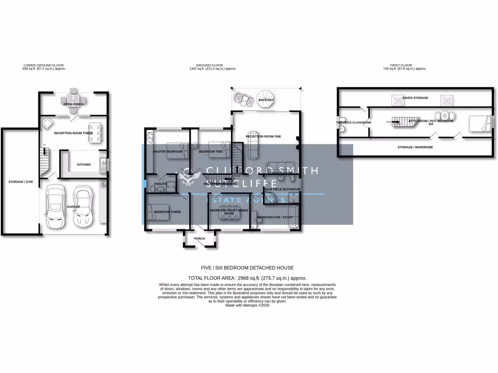
Architect-designed detached family house over three floors
Set on a large, tree-lined plot on the edge of rural Worsthorne, this architect-designed detached home offers spacious, flexible living across three levels—ideal for a growing family. Well-maintained reception rooms include a bright lounge with glazed doors to a rear wrought-iron balcony, while a lower-ground modern dining kitchen opens to a paved porch and private garden. The property includes five principal bedrooms plus a large attic room used as a sixth bedroom, three bathrooms and generous integral garage with extra storage space.
The mature, landscaped gardens wrap the house and provide strong privacy, paved terraces for alfresco dining and lawns that abut open countryside. Practical features include an impressive paved driveway for several cars, garage power and plumbing, filtered spring-water storage, and sixteen solar panels on the rear elevation that generate income and supply electricity to the house.
Notable considerations are factual: the property was built circa 1980 so buyers should note older construction elements despite careful maintenance. Water is supplied from a private filtered spring tank rather than mains; council tax sits in an expensive band; flood risk is assessed as medium for the area. The unusual multi-level layout and attic room are versatile but may not suit everyone—viewing is recommended to appreciate flow and room proportions.
This home suits buyers seeking countryside privacy within easy reach of local shops, regular buses into Burnley, and well-regarded primary schools. It offers immediate liveability with scope to personalise and modernise services where desired, while gardens and plot size present long-term family potential.
3 bedroom semi-detached house for sale in Ravenoak Lane, Worsthorne, Burnley, Lancashire, BB10 — £320,000 • 3 bed • 2 bath • 2144 ft²
3 bedroom detached house for sale in Annarly Fold, Worsthorne, Burnley, BB10 — £300,000 • 3 bed • 1 bath • 1175 ft²
4 bedroom detached house for sale in Lindsay Park, Burnley, Lancashire, BB10 — £329,950 • 4 bed • 2 bath • 1325 ft²
5 bedroom semi-detached house for sale in West Springfield, Castle Road, Colne, BB8 — £499,950 • 5 bed • 2 bath • 2070 ft²
5 bedroom detached house for sale in Bowland Close, Lowercroft, Bury, Greater Manchester, BL8 3DJ, BL8 — £1,000,000 • 5 bed • 3 bath • 3118 ft²
5 bedroom detached house for sale in Foxstones Lane, Cliviger, BB10 — £775,000 • 5 bed • 3 bath • 3660 ft²










































































































































































































































