Chain-free starter home steps from Poulton centre and local schools.
Two double bedrooms with modern fixtures
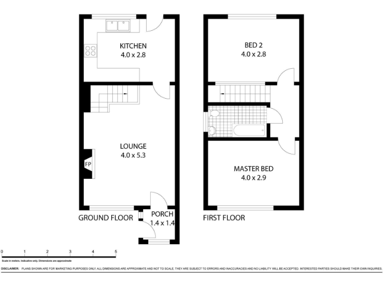
This well-presented two-bedroom semi-detached home sits within easy walking distance of Poulton centre, ideal for first-time buyers wanting a convenient, characterful base. The main living room is spacious for the house size and the modern fitted kitchen and bathroom reduce immediate upgrade needs.
Practical benefits include double glazing, gas central heating, a multi-car driveway and single garage for secure parking and storage. Good-sized front and rear gardens provide outdoor space for pets, children or container gardening despite the property’s small plot.
At about 615 sq ft with one bathroom, the layout is compact and best suited to couples, small families or buyers downsizing from a larger home. The property is chain free and in a very low-crime, affluent neighbourhood with good local schools and fast broadband — useful for commuting or working from home.
Buyers should note the modest overall floor area and small plot; there’s limited scope for major extension without planning. For someone seeking a ready-to-move-in starter home in a sought-after town location, this offers good value and convenience.
2 bedroom semi-detached house for sale in Nightingale Drive, Poulton-Le-Fylde, FY6 — £179,950 • 2 bed • 1 bath • 656 ft²
2 bedroom terraced house for sale in Garden Close , Poulton-Le-Fylde, FY6 — £169,950 • 2 bed • 1 bath • 351 ft²
2 bedroom semi-detached house for sale in Lower Green, Poulton-Le-Fylde, FY6 — £190,000 • 2 bed • 2 bath • 865 ft²
2 bedroom semi-detached house for sale in No. 26 Nightingale Drive, Poulton-le-Fylde, Lancs FY6 7UQ, FY6 — £159,500 • 2 bed • 1 bath
3 bedroom semi-detached house for sale in Newton Avenue, Poulton-Le-Fylde, FY6 — £189,950 • 3 bed • 1 bath • 948 ft²
2 bedroom semi-detached house for sale in 95 Garstang Road West, Poulton-Le-Fylde, FY6 8AR, FY6 — £279,950 • 2 bed • 1 bath • 1088 ft²






















































































































