CF11 9DY - 2 bedroom terraced house for sale in Orchard Place, Cardiff…

View on Property Piper

2 bedroom terraced house for sale in Orchard Place, Cardiff, CF11

Summary - 18 ORCHARD PLACE CARDIFF CF11 9DY

2 bed 1 bath Terraced

**Standout Features:**
- Sought-after urban location near artisan shops and Chapter Arts Centre
- Unique character features including stripped floorboards and a fireplace
- Open-plan design with spacious double bedrooms
- Enclosed garden providing landscaping potential
- Freehold tenure with moderate council tax
- Excellent mobile signal and fast broadband speeds

**Potential Concerns:**
- Property requires modernization and external wall repairs
- Above-average crime rate in the area
- Small overall size (523 sq ft) and very small plot size

Nestled in a vibrant and sought-after area, this charming Victorian terraced house presents a unique opportunity for first-time buyers or those seeking a cozy, character-filled home in the heart of the city. With artisan shops and the popular Chapter Arts Centre just a stone's throw away, you'll enjoy an eclectic lifestyle combined with convenient local amenities. The property features an inviting open-plan design accentuated by stripped floorboards and a delightful fireplace, creating a warm and welcoming atmosphere for relaxation or entertaining.

Comprising two spacious double bedrooms, a tastefully appointed bathroom, and a kitchen designed for cooking enthusiasts, this home offers modern comforts with timeless charm. The enclosed garden holds potential for landscaping and outdoor enjoyment. While the house requires some modernization, including external repairs, it provides a fantastic canvas for personal touches. Don’t miss out on this exclusive living opportunity in such a dynamic area—schedule a viewing today and envision your new lifestyle!

Property Details

Image Descriptions

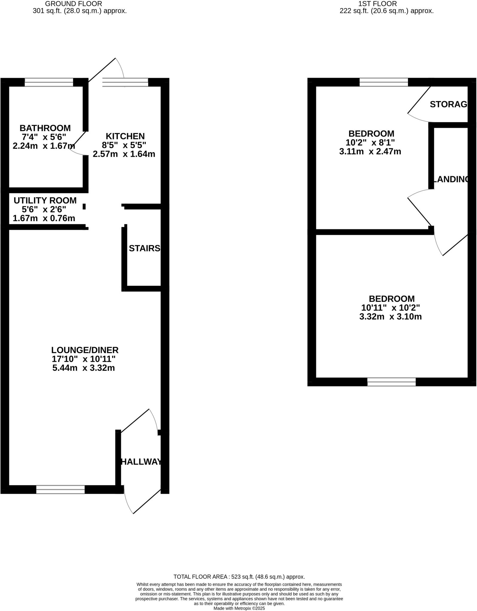
Floorplan Description

Rooms

Textual Property Features

Detected Visual Features

EPC Details

Nearest Bars And Restaurants

,,,,}

Nearest General Shops

,,}

Nearest Grocery shops

,,}

Nearest Supermarkets

,,}

Nearest Religious buildings

,,}

Nearest Medical buildings

,,,}

Nearest Airports

}

Nearest Leisure Facilities

,,,,}

Nearest Tourist attractions

,,}

Nearest Train stations

,,,,}

Nearest Bus stations and stops

,,,,}

Nearest Hotels

,,}

Tags

Local Market Stats

AirBnB Data

Similar Properties

Meta

High Res Images

Compatible Images

Low res Images

Thumbnails

Raw Images

High Res Floorplan Images

Compatible Floorplan Images

Low res Floorplan Images

FloorplanImages Thumbnail

Raw Floorplan Images