High-spec finishes, pool and parking — ideal for professionals seeking low-maintenance living.
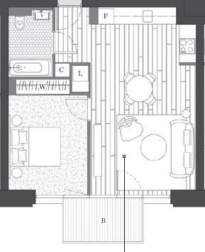
549 sq ft with private balcony
This bright 549 sq ft apartment on London City Island offers low-maintenance living with high-spec finishes and a private balcony. The open-plan studio-style layout features a contemporary kitchen with branded appliances, European oak engineered floors and built-in wardrobes, creating a clean, modern home for a single professional or couple.
Residents benefit from a strong amenity package: 24-hour concierge and security, gym, sauna, swimming pool and on-site parking. Zone 2 location is well connected — only a few steps from Canning Town station — making Central London commutes straightforward.
Practical points to note: the property is leasehold with a very long lease remaining (991 years) and an annual ground rent of £500. Heating is provided via a community scheme, which affects how heating costs are managed. The studio-style layout gives an open, airy feel but offers less separation between living and sleeping areas than a dedicated one-bedroom plan.
Overall this apartment suits first-time buyers or professionals seeking a well-equipped, low-upkeep home with excellent transport links and on-site facilities, provided a leasehold ownership and communal heating model are acceptable.
1 bedroom apartment for sale in Amelia House, London City Island, E14 — £425,000 • 1 bed • 1 bath • 560 ft²
1 bedroom flat for sale in Defoe House, E14, Canning Town, London, E14 — £525,000 • 1 bed • 1 bath • 590 ft²
1 bedroom apartment for sale in Grantham House, London City Island, E14 — £435,000 • 1 bed • 1 bath • 533 ft²
1 bedroom apartment for sale in Corson House, London City Island, London, E14 — £450,000 • 1 bed • 1 bath • 539 ft²
1 bedroom apartment for sale in Grantham House, London City Island , E14 — £400,000 • 1 bed • 1 bath • 555 ft²
1 bedroom apartment for sale in Echo House, City Island Way, E14 — £425,000 • 1 bed • 1 bath • 625 ft²










































