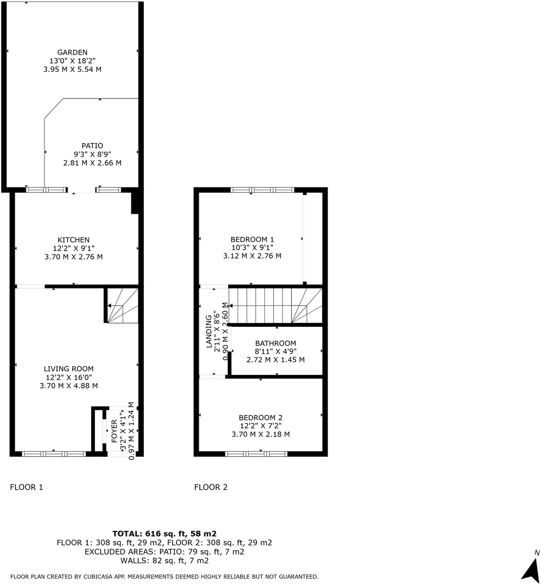
Two-bedroom freehold terrace with private garden, close to good schools and Hemel amenities..
- Quiet cul-de-sac location ideal for families
- Private enclosed rear garden with decking and shed
- Two bedrooms; one family bathroom
- Approximately 616 sq ft, traditional layout
- Communal off-street parking, first-come, first-served
- In catchment for highly rated local schools
- Built 1983–1990; double glazing installed before 2002
- Small plot; limited outdoor space and parking certainty
Set in a quiet cul-de-sac, this two-bedroom freehold terrace offers a compact, comfortable home for a small family or first-time buyers. The lounge leads to a kitchen overlooking a private, enclosed rear garden with decking and a storage shed — a manageable outdoor space for children or pets.
The house sits in a popular catchment for well-regarded primary and secondary schools and is close to Hemel Hempstead town centre, local shops, and scenic walks along Nickey Lane. Commuters benefit from fast rail services to London and easy access to the M1 and M25.
Built in the 1980s and double-glazed before 2002, the property is well maintained but modest in size (approximately 616 sq ft) and retains a traditional layout. It presents straightforward opportunities to refresh interiors and personalise finishes to modern tastes.
Practical points to consider: parking is communal on a first-come, first-served basis, the plot is small, and there is a single family bathroom. These factors suit buyers prioritising location and school catchment over extensive garden or off-street parking guarantees.
4 bedroom detached house for sale in Hunters Oak, Hemel Hempstead, HP2 — £650,000 • 4 bed • 2 bath • 1303 ft²
3 bedroom end of terrace house for sale in Hunters Oak, Hunter Oak, Hemel Hempstead, Hertfordshire, HP2 — £400,000 • 3 bed • 1 bath • 707 ft²
3 bedroom detached house for sale in Crackley Meadow, Woodhall Farm, Hemel Hempstead, Hertfordshire, HP2 — £480,000 • 3 bed • 2 bath • 1270 ft²
2 bedroom semi-detached house for sale in Hunters Oak, Hemel Hempstead, Hertfordshire, HP2 — £375,000 • 2 bed • 1 bath • 644 ft²
2 bedroom end of terrace house for sale in Sacombe Road, Hemel Hempstead, HP1 — £375,000 • 2 bed • 1 bath • 874 ft²
2 bedroom terraced house for sale in Ribblesdale, Hemel Hempstead, HP2 — £330,000 • 2 bed • 1 bath • 897 ft²






































