ME14 2QP - 2 bedroom terraced house for sale in Sheridan Close, Maidst…

View on Property Piper

2 bedroom terraced house for sale in Sheridan Close, Maidstone, Kent, ME14

Summary - 11 SHERIDAN CLOSE MAIDSTONE ME14 2QP

2 bed 1 bath Terraced

**Standout Features:**
- Home for Life Plan available for those over 60, offering savings of 20% to 50%
- Current price of **£185,500** for a 2-bedroom terraced house (full market value: £280,000)
- Quiet cul-de-sac location with excellent motorway links
- Extended rear space perfect for entertaining
- Low-maintenance garden with patio and privacy features
- Nearby schools rated Good to Outstanding
- Freehold property with fast broadband and excellent mobile signal

**Potential Concerns:**
- Small overall size (453 sq ft), which may not suit larger families
- Area classification indicates economic constraints for renters

This charming two-bedroom terraced home offers an exceptional opportunity for those over 60 through the Home for Life Plan, allowing you to secure a share of the property at a reduced price. Nestled in a peaceful cul-de-sac, the property features an extended living area ideal for hosting gatherings, and a low-maintenance garden space perfect for relaxation. Ideal for first-time buyers, retirees, or small families, this home also boasts proximity to highly-rated schools, making it family-friendly.

Despite a modest square footage, the home's layout is functional, and all amenities are conveniently located nearby. While the area may face some economic challenges, the strong transport links and local conveniences add to its appeal. Act quickly to seize this unique lifetime lease opportunity that could lead to significant savings and enable you to safeguard your future. Don’t miss out on this affordable retreat!

Property Details

Image Descriptions

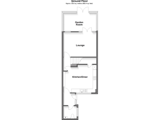
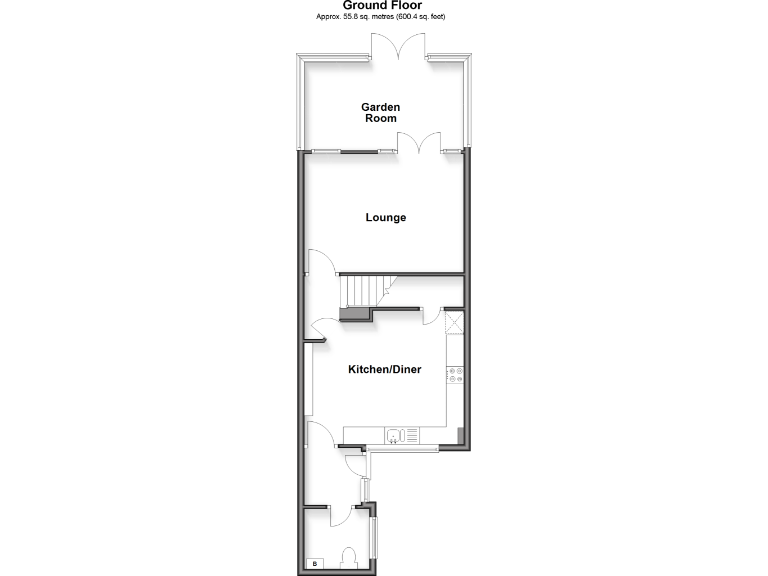
Floorplan Description

Rooms

Textual Property Features

Detected Visual Features

EPC Details

Nearby Schools

Nearest Bars And Restaurants

,,,,}

Nearest General Shops

,,}

Nearest Grocery shops

,,}

Nearest Supermarkets

,,}

Nearest Religious buildings

,,}

Nearest Medical buildings

,,,}

Nearest Leisure Facilities

,,,,}

Nearest Tourist attractions

,,}

Nearest Train stations

,,,,}

Nearest Bus stations and stops

,,,,}

Nearest Hotels

,,}

Tags

Local Market Stats

AirBnB Data

Similar Properties

Meta

High Res Images

Compatible Images

Low res Images

Thumbnails

Raw Images

High Res Floorplan Images

Compatible Floorplan Images

Low res Floorplan Images

FloorplanImages Thumbnail

Raw Floorplan Images