Contemporary, adaptable living with terrace and garden for growing families.
Integral single garage and off-street parking included
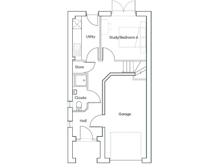
This three-storey semi-detached new build is designed for family living, with flexible space across three floors and a large plot for outdoor use. The first-floor living room opens onto a contemporary terrace, while a spacious kitchen/diner and separate utility room provide practical day-to-day living. An integral garage and off-street parking add convenience for households with cars.
The primary bedroom includes an en suite shower room and two further good-sized bedrooms occupy the second floor. The fourth bedroom can easily be used as a home office or study, offering adaptability for working from home or growing families. High-performance insulation, double glazing and full gas central heating aim to keep running costs reasonable.
Practical safeguards include a 10-year new home warranty and a modest annual service charge of £163.36. Broadband speeds are fast and local schools are well rated, making the location suitable for families. The property sits in an affluent, comfortable suburbia with low flood risk.
Notable drawbacks are stated plainly: local crime levels are above average, and the council tax band is yet to be confirmed. A reservation fee applies when securing a plot, and some specification choices may be optional extras from the developer. Buyers should verify final bathroom count and any additional purchase costs before committing.
3 bedroom semi-detached house for sale in Manor Croft, Branston, Burton-on-Trent, DE14 — £280,000 • 3 bed • 2 bath • 977 ft²
3 bedroom detached house for sale in Perle Road, Burton-On-Trent, DE14 — £230,000 • 3 bed • 2 bath • 747 ft²
3 bedroom detached house for sale in Beamhill Road,
Anslow,
DE13 — £314,995 • 3 bed • 1 bath • 324 ft²
3 bedroom house for sale in Bishop Place, Burton-On-Trent, DE13 — £240,000 • 3 bed • 3 bath • 753 ft²
4 bedroom detached house for sale in Manor Croft, Branston, Burton-on-Trent, DE14 — £400,000 • 4 bed • 2 bath • 1355 ft²
3 bedroom semi-detached house for sale in Saw Mill Way, Burton-on-Trent, DE14 — £215,000 • 3 bed • 2 bath • 1015 ft²














































