Chain-free three-bedroom semi with countryside views and extension potential.
Chain-free three-bedroom semi-detached home, 975 sq ft
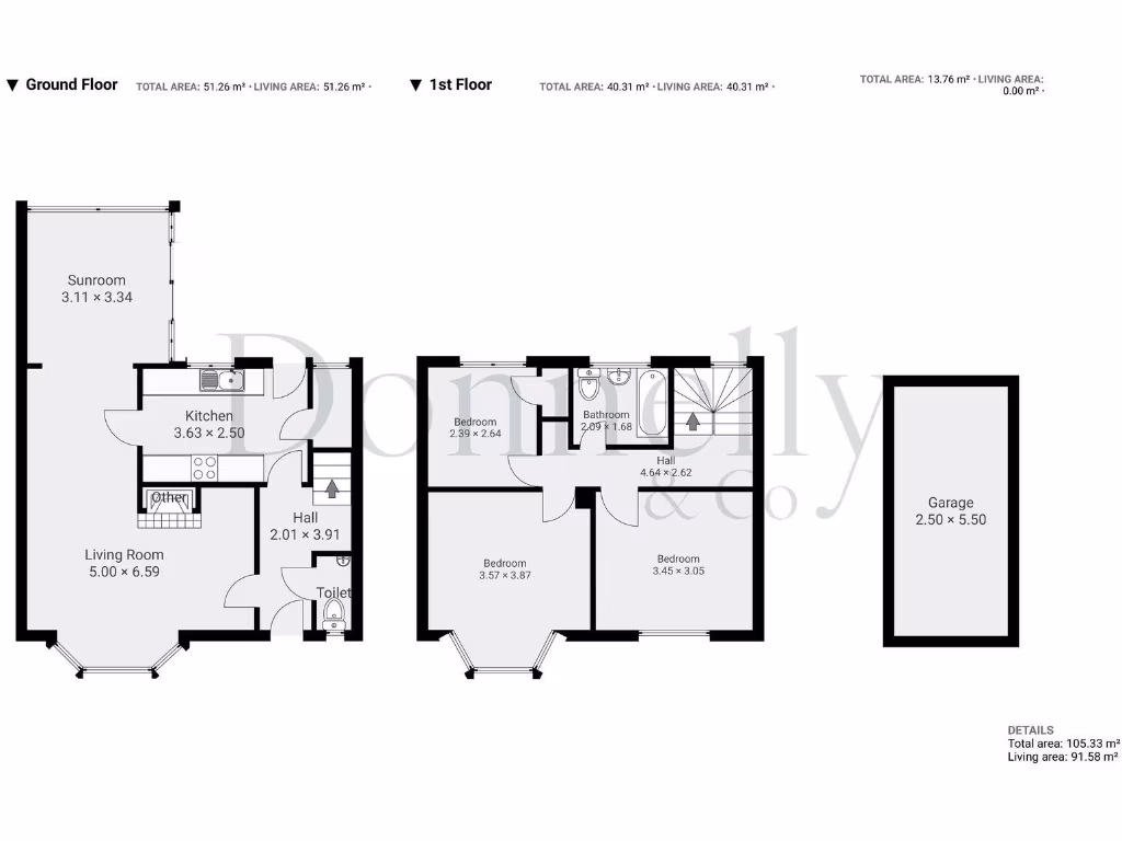
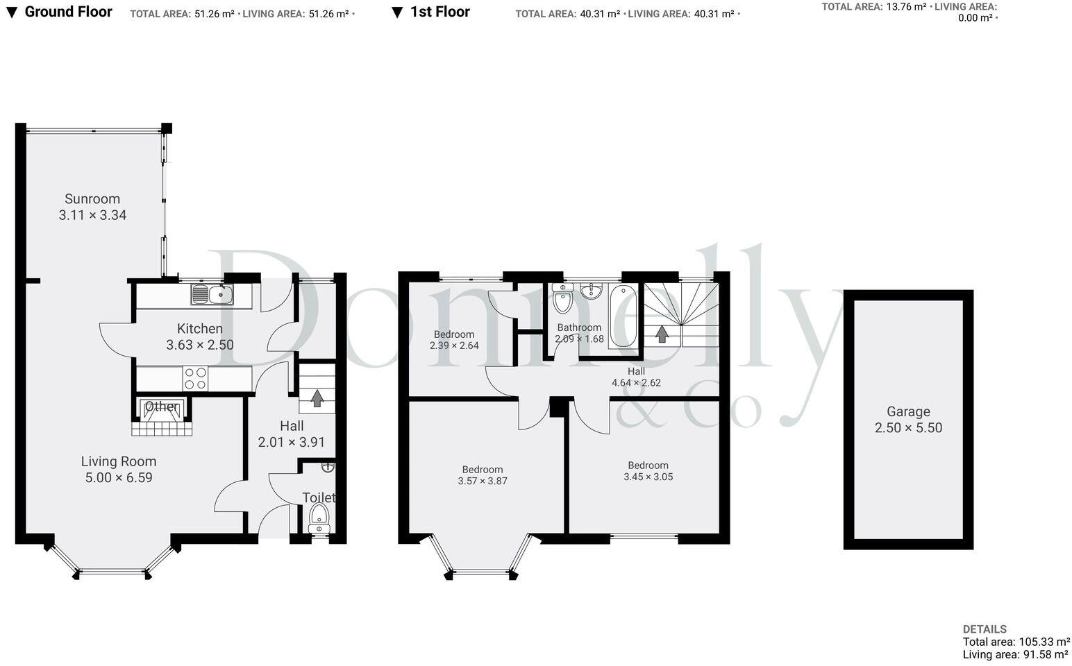
Chain-free, bay-fronted three-bedroom semi with 975 sq ft of living space on a large west-facing plot. The house sits on Tinshill Drive with countryside views from the first floor and excellent local schools nearby — a practical family home with clear potential to improve and extend (subject to planning permission).
Internally the layout is traditional and well-proportioned: a bright bay-fronted living room with a recess for a log-burning stove, separate dining area leading to a conservatory, modern kitchen with integrated appliances and a handy pantry, plus a ground-floor WC. Upstairs there are two double bedrooms, a single room suitable for a home office, and a family bathroom. The property is double glazed and heated by a mains gas boiler and radiators.
Outside the rear garden faces west and benefits from afternoon sun and open countryside views upstairs. Off-street parking is provided to the front. There is a detached prefabricated concrete garage at the side that is in poor condition and will likely need removal or full replacement. The house requires renovation in places — cosmetic updates and potential structural works if you pursue a rear extension — so buyers should allow budget for improvement works.
This freehold home will suit families or buyers seeking renovation potential in a very affluent, well-connected Leeds suburb. It is presented with no onward chain, so a prompt transaction is possible for those prepared to carry out the necessary updates and consider extension subject to permissions.
3 bedroom semi-detached house for sale in Tinshill Road, Leeds, LS16 — £350,000 • 3 bed • 2 bath • 1213 ft²
3 bedroom semi-detached house for sale in Moseley Wood Avenue, Leeds, West Yorkshire, LS16 — £325,000 • 3 bed • 1 bath • 1000 ft²
3 bedroom semi-detached house for sale in Tinshill View, Leeds, West Yorkshire, LS16 — £275,000 • 3 bed • 1 bath • 879 ft²
4 bedroom semi-detached house for sale in Tinshill Road, Leeds, West Yorkshire, LS16 — £475,000 • 4 bed • 1 bath • 1740 ft²
3 bedroom semi-detached house for sale in Kirkwood Crescent, Cookridge, Leeds, West Yorkshire, LS16 — £329,950 • 3 bed • 1 bath • 850 ft²
3 bedroom semi-detached house for sale in Green Lane, Cookridge, Leeds, LS16 — £347,500 • 3 bed • 1 bath • 1270 ft²


















































































