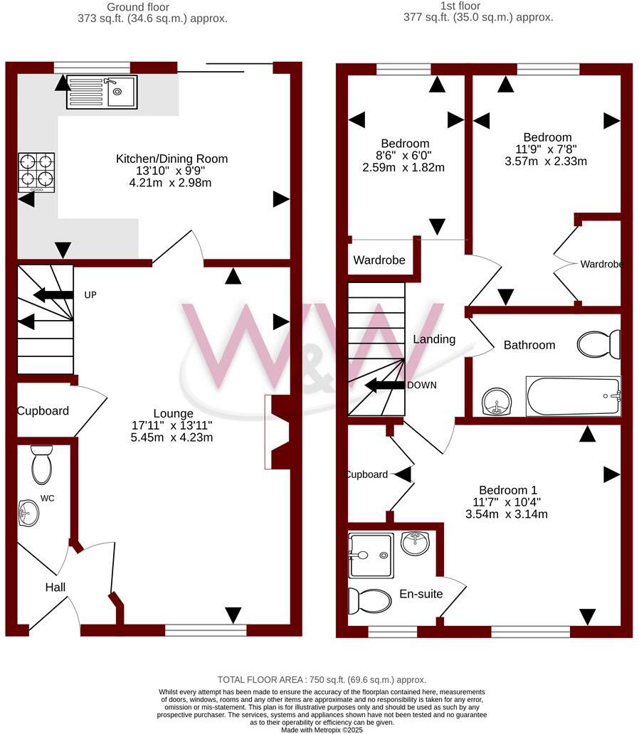
**Standout Features:**
- Modern 3-bedroom semi-detached family home
- En-suite shower room in the master bedroom
- Spacious kitchen/dining area with patio doors to garden
- Landscaped rear garden, low-maintenance outdoor space
- Allocated parking available
- Close proximity to shopping, dining, and leisure facilities
**Potential Concerns:**
- Average crime rate in the area
- Small overall footprint (750 sq ft) may limit expansion options
Welcome to your modern, well-appointed semi-detached family home nestled in the desirable Thyme Avenue. This inviting property features three cozy bedrooms, including a master with an en-suite, making it a wonderful haven for families. The generous lounge (17'1" x 13'11") is perfect for gatherings, while the spacious kitchen/dining room (13'0" x 9'9") opens directly onto a landscaped garden, perfect for outdoor entertaining or private relaxation.
Conveniently located just a short stroll from the Whiteley Shopping Centre and Meadowside Leisure Centre, you'll enjoy a wealth of amenities including shops, eateries, and recreational facilities. Families will appreciate the proximity to local primary schools rated as Outstanding and Good by Ofsted. While the compact layout is designed for efficiency, it may pose limitations for those seeking more space. However, with allocated off-street parking and excellent transport links (a quick drive to the M27), this property offers both comfort and convenience in an affluent neighborhood. Don’t miss out on this ideal family home!
3 bedroom end of terrace house for sale in Thyme Avenue, Whiteley, PO15 — £329,995 • 3 bed • 2 bath • 952 ft²
2 bedroom semi-detached house for sale in Thyme Avenue, Whiteley, Fareham, Hampshire, PO15 — £320,000 • 2 bed • 1 bath • 610 ft²
3 bedroom link detached house for sale in Thyme Avenue , Whiteley, PO15 — £350,000 • 3 bed • 3 bath • 1182 ft²
4 bedroom semi-detached house for sale in Thyme Avenue, Whiteley, PO15 — £400,000 • 4 bed • 3 bath • 1400 ft²
2 bedroom semi-detached house for sale in Thyme Avenue, Whiteley, PO15 — £289,000 • 2 bed • 2 bath • 682 ft²
3 bedroom semi-detached house for sale in Defoe Close, Whiteley, PO15 — £350,000 • 3 bed • 2 bath • 738 ft²


















































