Bright family-focused layout with new-build reassurance and flexible spaces.
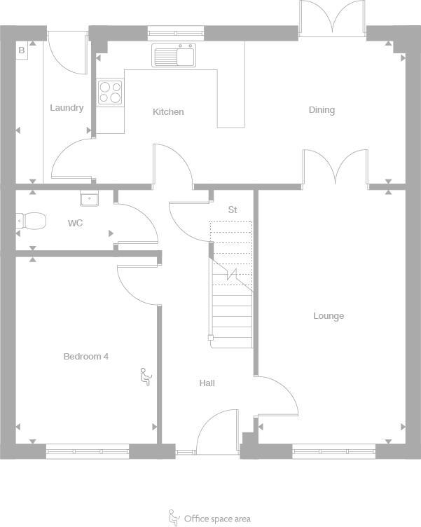
Open-plan kitchen/dining/family room with French doors to the garden
Separate lounge for quieter living or formal seating
Principal bedroom with private en-suite shower room
Integral single garage and separate laundry room
10-year NHBC warranty; modern energy-efficient measures
Service charge £69 per year; small estate maintenance cost
Slow broadband speeds locally; check provider availability
Council tax above average for the area
This four-bedroom detached new-build offers a contemporary family layout centred on a large open-plan kitchen, dining and family area. French doors bring light and summer flow to the garden while a separate lounge provides quieter space for adults and guests. The principal bedroom includes an en-suite; three further bedrooms suit children or hobbies.
Practical features include an integral single garage, a dedicated laundry room and a downstairs WC to keep daily life organised. The home comes with a 10-year NHBC warranty and energy-efficient measures designed to reduce running costs. Interiors are presented in a modern, neutral specification typical of new developments.
Considerations: broadband speeds in the area are reported slow, which may affect home working or streaming; mobile signal is excellent. The wider area registers higher deprivation indices and council tax is above average, though the modest annual service charge of £69 covers estate upkeep. Buyers should check exact council tax band and broadband options before committing.
This property will suit families seeking a low-maintenance, move-in-ready home with flexible spaces for home office or play, plus the reassurance of new-build warranties. There is potential to personalise finishes and landscaping to maximise garden use and overall comfort.
4 bedroom detached house for sale in Off Baldovan Road,
Strathmartine,
Angus,
DD3 0PG, DD3 — £359,000 • 4 bed • 1 bath
4 bedroom detached house for sale in Off Baldovan Road,
Strathmartine,
Angus,
DD3 0PG, DD3 — £345,000 • 4 bed • 1 bath
4 bedroom detached house for sale in Off Baldovan Road,
Strathmartine,
Angus,
DD3 0PG, DD3 — £349,000 • 4 bed • 1 bath
4 bedroom detached house for sale in Off Baldovan Road,
Strathmartine,
Angus,
DD3 0PG, DD3 — £350,000 • 4 bed • 1 bath
4 bedroom detached house for sale in Off Baldovan Road,
Strathmartine,
Angus,
DD3 0PG, DD3 — £298,000 • 4 bed • 1 bath
4 bedroom detached house for sale in Off Baldovan Road,
Strathmartine,
Angus,
DD3 0PG, DD3 — £362,000 • 4 bed • 1 bath






























































































































































