Flexible five-bedroom property with parking and village convenience.
3-bed main house, 2-bed large annexe (separate living potential)
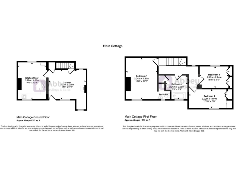
A charming period cottage with a large attached annexe, arranged as a 3-bed, 2-bath main house plus a 2-bed, 1-bath annexe. The property blends original character — exposed beams and cottage brickwork — with contemporary finishes, creating a largely move-in-ready home with flexible living arrangements.
The annexe is a standout feature: ideal for extended family, independent teenagers, long-stay guests or potential rental/Airbnb (subject to planning). Ample secure off-street parking and generous storage space make this home practical for hobbyists, car enthusiasts or a small home-based business.
Practical considerations: the house is small overall (approx. 689 sq ft) for a five-bedroom split, and the building’s solid brick construction likely lacks wall insulation, so thermal improvements could be needed. The EPC is D. The area has very good broadband and mobile signal, but local crime is noted as above average — something to factor into resale or rental decisions.
Positioned in Birstall’s historic Old Village, the location offers real community charm with shops, the White Horse pub, and well-regarded schools within walking distance. Watermead Country Park and quick A6 links to Leicester provide convenient green space and commuter routes, making this a rare, adaptable property for downsizers who want flexible accommodation or buyers seeking rental potential.
3 bedroom detached house for sale in Birstall Road, Birstall, Leicester, Leicestershire, LE4 — £335,000 • 3 bed • 1 bath • 1151 ft²
3 bedroom cottage for sale in Thurcaston Road, Leicester, LE4 — £250,000 • 3 bed • 1 bath • 808 ft²
4 bedroom detached house for sale in High Street, Kibworth Beauchamp, LE8 — £588,000 • 4 bed • 1 bath • 1791 ft²
5 bedroom detached house for sale in Trefoil Close, Broughton Astley, Leicester, LE9 — £545,000 • 5 bed • 3 bath • 1764 ft²
2 bedroom terraced house for sale in Front Street, Birstall, Leicester, LE4 — £214,950 • 2 bed • 1 bath • 656 ft²
3 bedroom detached bungalow for sale in Station Road, Market Bosworth, CV13 — £340,000 • 3 bed • 1 bath • 991 ft²










































































































