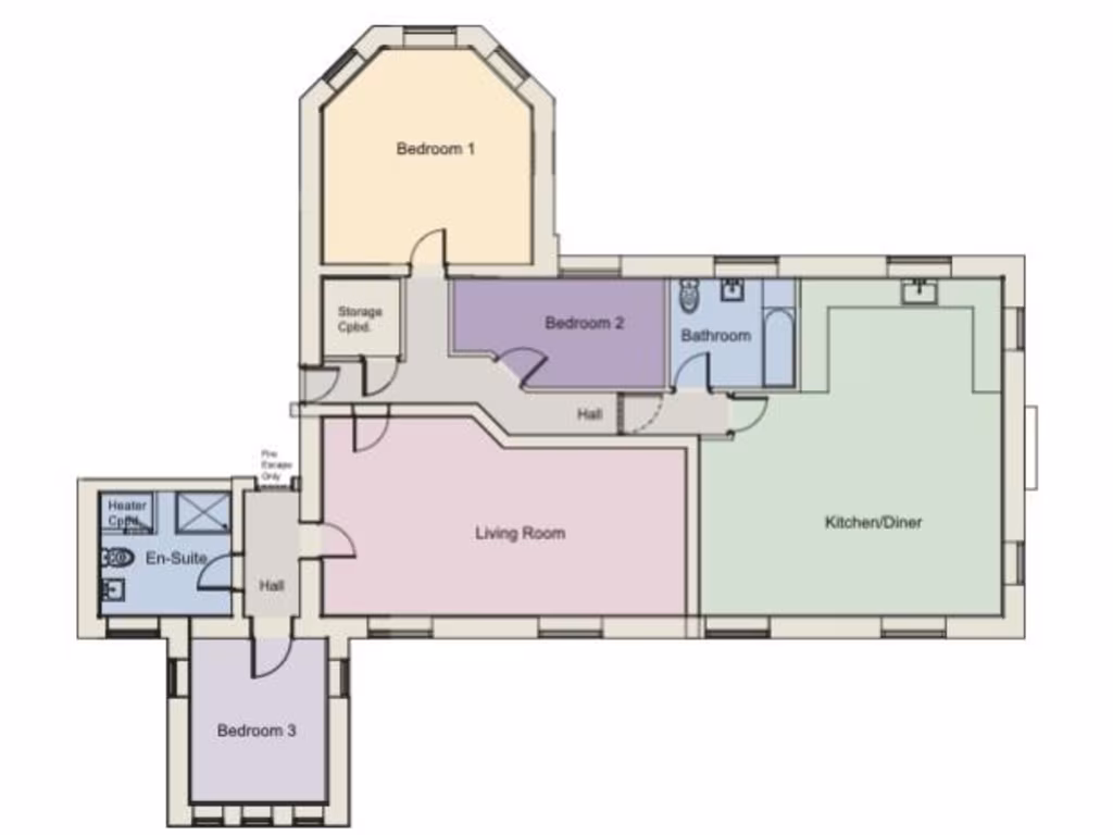
Move-in ready three-bed apartment with new kitchen and high ceilings..
Fully furnished, ready to move into
This large, fully furnished three-bedroom apartment is ready to move into and suits buyers wanting modern, low-hassle accommodation. High ceilings and large windows create an airy feel throughout; the open-plan new kitchen and generous living room make day-to-day life and entertaining straightforward.
Bedrooms are well proportioned with built-in storage and flexible space for family living, guests or a home office. The apartment includes three bathrooms and has been finished to a contemporary standard, so little immediate renovation is required.
Important considerations: the property is leasehold (length and service charges not supplied), and the local area records higher crime levels and very high deprivation—buyers should view in person and check lease, service charges, and local safety measures. Council tax banding is not provided, so budget planning should allow for that unknown. Fast broadband and no flood risk are practical positives for modern living.
Overall, this is an attractive, move-in-ready apartment with strong immediate usability and modern finishes, best suited to buyers who prioritise convenience and contemporary living but who will carry out due diligence on lease terms and local area factors.
2 bedroom flat for sale in Jenard Court, Holywell, Flintshire, CH8 — £100,000 • 2 bed • 1 bath • 670 ft²
2 bedroom apartment for sale in The Copper Beeches, Old Chester Road, Holywell, CH8 — £160,000 • 2 bed • 1 bath • 458 ft²
1 bedroom flat for sale in The Lloc, Old Chester Road, Holywell, CH8 — £170,000 • 1 bed • 1 bath • 598 ft²
1 bedroom flat for sale in Brynford Villas, Holywell, Flintshire, CH8 — £85,000 • 1 bed • 1 bath • 450 ft²
3 bedroom flat for sale in New Street, Mold, CH7 — £199,999 • 3 bed • 2 bath • 1234 ft²
3 bedroom semi-detached house for sale in Hafod Y Ddol, Holywell, CH8 — £190,000 • 3 bed • 1 bath • 1235 ft²


























