SO32 2TR - 5 bedroom detached house for sale in The Ridings, Waltham C…

View on Property Piper

5 bedroom detached house for sale in The Ridings, Waltham Chase, SO32

Summary - 33 THE RIDINGS WALTHAM CHASE SOUTHAMPTON SO32 2TR

5 bed 3 bath Detached

Large five-bedroom home with field views, double garage and generous garden.
Detached five-bedroom family home with extensive living space
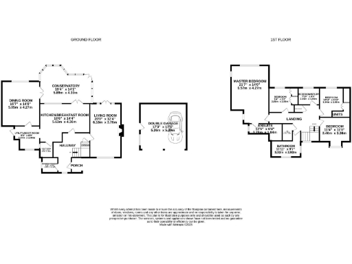
Set on a large plot with direct field views, this extended five-bedroom detached home is designed for family life and entertaining. The ground floor offers a generous sitting room, separate dining room opening to a 17ft conservatory, and a large kitchen/breakfast room with quality appliances and utility/boot room. A modern wet-room style shower and cloakroom add practical ground-floor convenience.

Upstairs the master bedroom is especially spacious with extensive fitted storage and a modern en-suite; four further bedrooms and a fully tiled family bathroom provide flexible space for children, guests or a home office. A detached double garage, driveway parking for several vehicles and a mature, well-planted rear garden complete the plot.

The location is village-fringe, close to primary school, church, shop, pub and recreation ground, with Bishop’s Waltham, Wickham and Botley a short drive away. Winchester and Southampton Airport are within half an hour and motorways are easily reached. Broadband is fibre-to-cabinet with good download speeds.

Considerations: the property dates from the 1980s with double glazing of unknown age and an EPC rating of D; council tax sits in a higher band. Overall the house offers roomy family accommodation on a large plot with clear potential for cosmetic updating to suit personal taste.

Property Details

Image Descriptions

Rooms

Textual Property Features

Target Audience

AI Tags

Detected Visual Features

EPC Details

Nearby Schools

Nearest Bars And Restaurants

,,,,}

Nearest General Shops

,,}

Nearest Grocery shops

,,}

Nearest Supermarkets

,,}

Nearest Religious buildings

,,}

Nearest Medical buildings

,,,}

Nearest Airports

}

Nearest Leisure Facilities

,,,,}

Nearest Tourist attractions

,,}

Nearest Train stations

,,,,}

Nearest Bus stations and stops

,,,,}

Nearest Hotels

,,}

Tags

Local Market Stats

AirBnB Data

Similar Properties

Meta

High Res Images

Compatible Images

Low res Images

Thumbnails

Raw Images

High Res Floorplan Images

Compatible Floorplan Images

Low res Floorplan Images

FloorplanImages Thumbnail

Raw Floorplan Images