Low-maintenance one-bedroom close to shops and rail links.
No forward chain — ready for immediate purchase
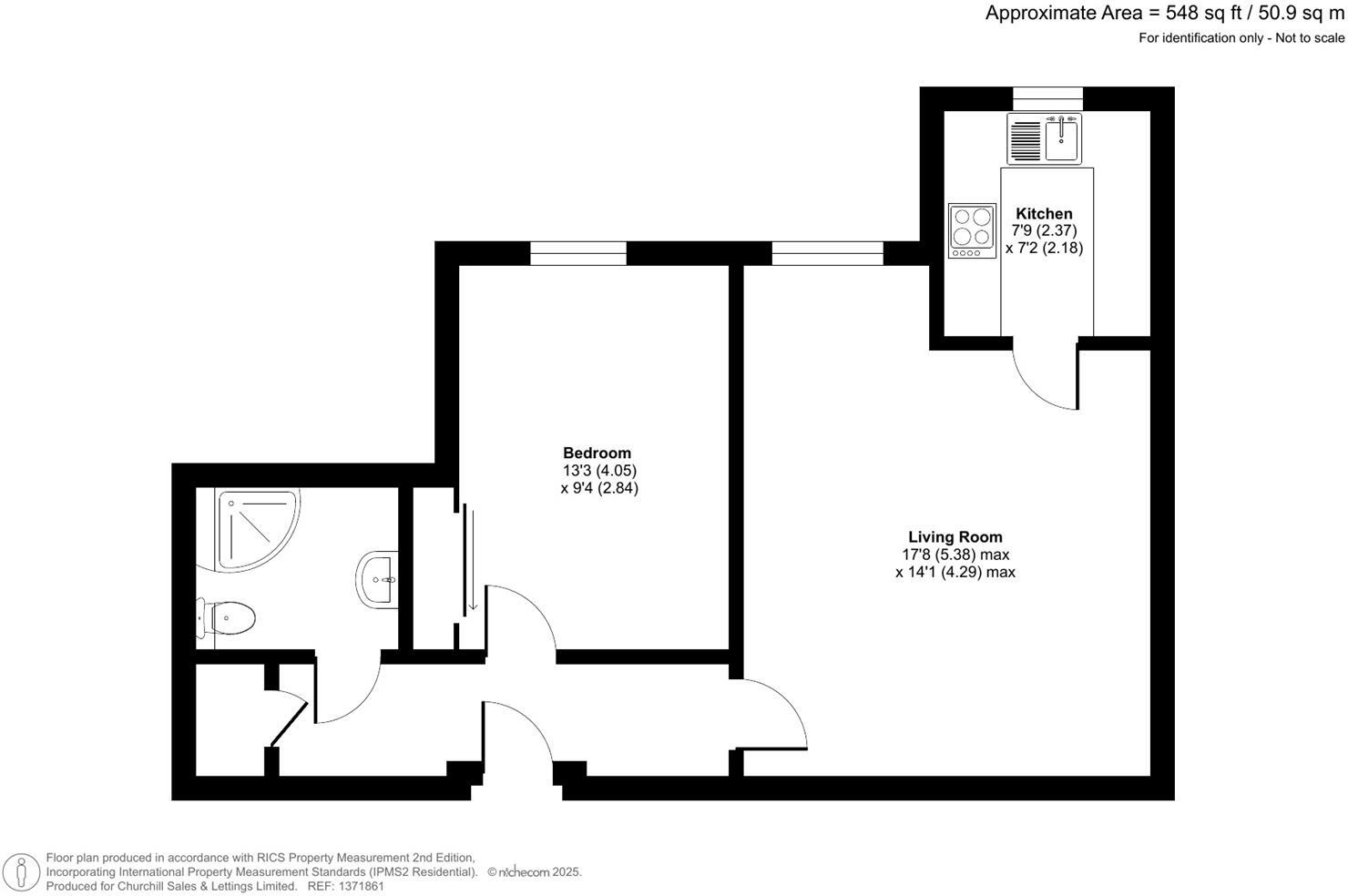
A purpose-built one-bedroom retirement apartment on the second floor of Royal Lodge, offered chain-free and ready to move into. The layout provides a generous living/dining room, double bedroom with fitted wardrobe, fitted kitchen with integrated appliances, and a large shower room. The flat is close to the communal lift and benefits from double glazing and modern build quality (2007–2011).
Royal Lodge is designed for retirement living: a lodge manager is on site five days a week, there is a 24-hour Careline emergency system, and an owners’ lounge with regular social events. A Guest Suite is available for visitors, and owners may use Guest Suites at other Churchill Living developments. The site includes residents’ off-street parking and is a short walk from Gillingham town centre and rail links.
Important practical points are the service charge and ground rent: current service charge c. £3,048.40 per year and ground rent £846.47 per year (next review May 2032). Heating is by electric room heaters rather than a communal system, which can mean higher running costs. The lease has approximately 111 years remaining.
Buyers should note the local crime level is rated very high for the immediate area. Broadband speeds are average. Overall this apartment will suit someone seeking low-maintenance, socially active retirement accommodation close to local amenities, but who is comfortable with electric heating and the ongoing service charges and ground rent.
1 bedroom retirement property for sale in Royal Lodge, Gillingham, SP8 — £105,000 • 1 bed • 1 bath • 548 ft²
1 bedroom apartment for sale in Newbury, Gillingham, SP8 — £100,000 • 1 bed • 1 bath • 517 ft²
2 bedroom retirement property for sale in Royal Lodge, Gillingham, SP8 — £134,950 • 2 bed • 1 bath • 743 ft²
1 bedroom retirement property for sale in Barnaby Mill, Gillingham, SP8 — £107,500 • 1 bed • 1 bath • 661 ft²
1 bedroom retirement property for sale in Hardy Lodge, Shaftesbury, SP7 — £230,000 • 1 bed • 1 bath • 565 ft²
1 bedroom retirement property for sale in Hardy Lodge, Shaftesbury, SP7 — £210,000 • 1 bed • 1 bath • 395 ft²






























































