Light, chain-free bungalow with south garden and garage — ideal for downsizers..
Quiet cul-de-sac location, short stroll to St Mary’s Square
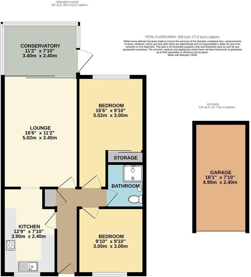
This light, single-storey bungalow sits at the top of a quiet cul-de-sac in Brixham and is well suited to a retirement downsize or anyone seeking a low-maintenance home close to town and coast. The layout is traditional and easy to navigate: two double bedrooms, a bright living room that opens into a large sunny conservatory, a functional shower room and a front-facing kitchen. The rear garden faces south and is private, mostly paved with mature planting.
Practical positives include a garage and allocated parking in a nearby block, gas central heating, UPVC double glazing and an affordable council tax band. The location is strong — short stroll to St Mary’s Square, under a mile to the harbour and convenient for local shops, bus routes and coastal walks like Berry Head. Offered with no onward chain, the property is quick to move into once desired works are agreed.
The bungalow does require cosmetic modernisation and would benefit from updating the kitchen, shower room and internal décor. The walls are cavity-built with assumed no added insulation, so consider upgrading insulation and heating efficiency. The garage is in a separate block down the road, which may be less convenient for some buyers but provides secure off-street parking.
Overall this terrace bungalow offers an attractive, low-maintenance base in an affluent, very low-crime neighbourhood with excellent local amenities. It’s best suited to retirees or buyers seeking a manageable home with scope to modernise and improve energy performance.
2 bedroom semi-detached bungalow for sale in Milton Crescent, Brixham, TQ5 — £310,000 • 2 bed • 1 bath • 921 ft²
2 bedroom semi-detached bungalow for sale in Pine Close, Brixham, TQ5 — £325,000 • 2 bed • 2 bath • 965 ft²
2 bedroom semi-detached bungalow for sale in Higher Penn, Brixham, TQ5 — £250,000 • 2 bed • 1 bath • 786 ft²
2 bedroom bungalow for sale in Cumber Close, Brixham, Devon, TQ5 — £240,000 • 2 bed • 1 bath • 538 ft²
2 bedroom detached bungalow for sale in Ranscombe Close, Brixham, TQ5 — £377,000 • 2 bed • 1 bath • 732 ft²
3 bedroom detached bungalow for sale in Cotmore Close, Brixham, TQ5 — £450,000 • 3 bed • 2 bath • 1332 ft²


























































































































