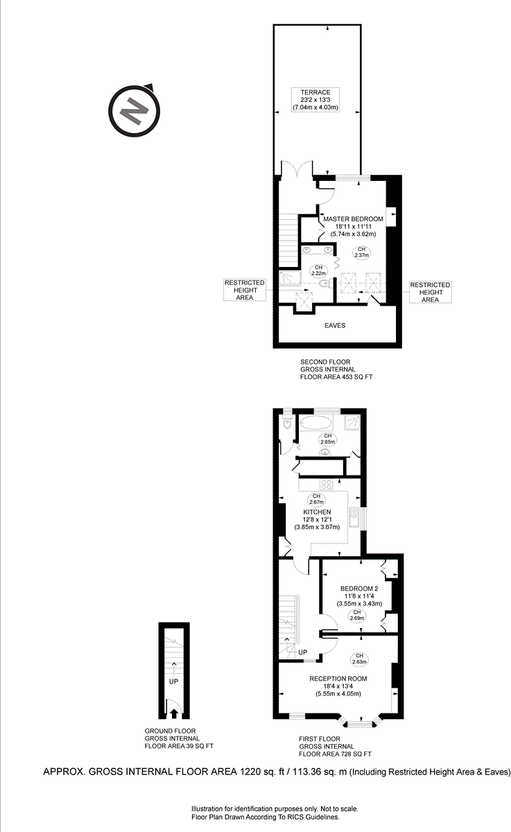
**Standout Features:**
- Two double bedrooms and two bathrooms (one en suite)
- Bay fronted living room with period fireplace
- Spacious kitchen/breakfast room
- Exceptional 23’2 private roof terrace
- Recently redecorated with a new kitchen
- Less than two minutes walk to River Thames and local amenities
- Leasehold with no onward chain
This exquisite two-bedroom, two-bathroom split-level period maisonette in the highly desirable Crabtree conservation area offers both charm and modern convenience. Spanning 1220 sq. ft., this home features a generous bay fronted living room adorned with a classic period fireplace and a contemporary kitchen/breakfast room, perfect for gatherings. Ideal for young couples or families, the property includes two spacious bedrooms complete with built-in wardrobes, including a master bedroom with an en-suite bathroom. A standout highlight is the magnificent private roof terrace, providing a serene space for al-fresco dining and relaxation.
Conveniently located just moments from the scenic River Thames towpath and an array of local eateries and pubs, such as The River Café and Riverside Studios, this maisonette not only promises an affluent lifestyle but also potential for investment. With its recent renovations and chain-free status, you can move in without delay. However, note that the property falls under Council Tax Band D, and it is important to keep in mind that the Victorian construction may require some additional maintenance due to its age. Don't miss out on this unique opportunity to secure a beautiful home in a vibrant neighborhood!
2 bedroom apartment for sale in Rainville Road, Hammersmith, London, W6 — £775,000 • 2 bed • 2 bath • 797 ft²
3 bedroom apartment for sale in Petley Road, Hammersmith, London, W6 — £775,000 • 3 bed • 2 bath • 964 ft²
2 bedroom apartment for sale in Winslow Road, Hammersmith, London, W6 — £749,950 • 2 bed • 1 bath • 735 ft²
2 bedroom apartment for sale in Colwith Road, Hammersmith, London, W6 — £725,000 • 2 bed • 1 bath • 661 ft²
2 bedroom apartment for sale in Petley Road, Hammersmith, London, W6 — £649,950 • 2 bed • 2 bath • 922 ft²
3 bedroom maisonette for sale in Crabtree Lane, Fulham, London, SW6 — £900,000 • 3 bed • 2 bath • 1170 ft²






















































