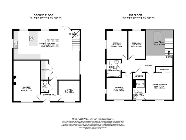
**Standout Features:**
- Modern four-bedroom detached home built by Bloor Homes in 2014
- Located opposite open green space, perfect for families and outdoor activities
- Spacious L-shaped kitchen diner with integrated appliances and porcelain tiled flooring
- Luxury master suite with ensuite and built-in wardrobe
- Versatile study/home office space
- Private garden with raised decking and pergola
- Driveway for two cars plus a single garage
- Excellent broadband and mobile signal
Welcome to your new family haven! This modern four-bedroom detached home, constructed by Bloor Homes in 2014, embraces both style and functionality while overlooking serene green space. Ideal for family living, the property features a spacious L-shaped kitchen diner outfitted with high-quality integrated appliances and a contemporary design perfect for entertaining. The inviting lounge, complete with a feature fireplace, offers a cozy ambiance and stunning views of the surroundings.
Retreat to the luxury master suite, which boasts a stunning ensuite and ample wardrobe space. With three additional well-proportioned bedrooms, including a versatile study that can serve as a home office or playroom, this home caters to all your family's needs. The private rear garden, featuring a lovely pergola and decking area, provides an ideal space to unwind or entertain guests.
Located in a thriving family-friendly community, this home is close to esteemed schools with Good Ofsted ratings and offers easy access to local amenities. Don’t miss this opportunity for stylish, comfortable living in a sought-after area—schedule your viewing today and start envisioning your future in this exceptional property!
4 bedroom detached house for sale in Kensington Avenue, Burbage, LE10 — £519,950 • 4 bed • 2 bath • 1740 ft²
4 bedroom detached house for sale in Buxton Crescent, Broughton Astley, LEICESTER, LE9 — £459,950 • 4 bed • 3 bath • 1778 ft²
4 bedroom detached house for sale in Old Farm Lane, Newbold Verdon, Leicester, LE9 — £450,000 • 4 bed • 2 bath • 1147 ft²
3 bedroom detached house for sale in Aldin Way, Hinckley, LE10 — £340,000 • 3 bed • 2 bath • 1389 ft²
4 bedroom detached house for sale in Trefoil Close, Broughton Astley, LE9 — £495,000 • 4 bed • 3 bath • 1475 ft²
4 bedroom detached house for sale in Rieth Close, Hinckley, LE10 — £380,000 • 4 bed • 2 bath • 1350 ft²










































































































































































































