Ideal family home near large park and easy commuter links.
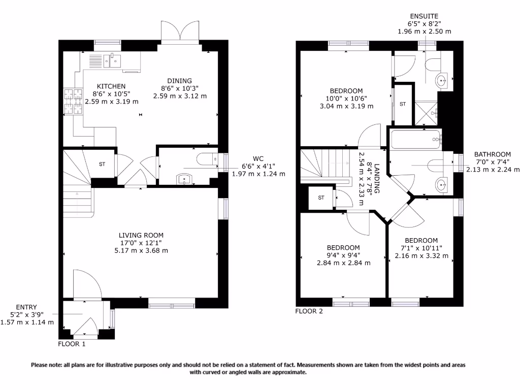
Three bedrooms with main en-suite and built-in wardrobes
Bright, practical and newly built, this three-bedroom semi-detached house suits growing families seeking easy commuting and outdoor space. The ground floor open-plan kitchen/dining area leads to a rear patio and large garden — ideal for children and weekend entertaining. The main bedroom includes an en-suite and built-in wardrobes, while a generous lounge provides a comfortable living hub.
Internally the home is compact at about 804 sq ft, so rooms are appropriately sized rather than spacious throughout. The property sits on a very large plot, offering scope to extend or landscape subject to planning. Broadband is fast and mobile signal is excellent, supporting home working and modern family needs.
Plean village provides local amenities, primary schooling, and direct routes to Stirling, Glasgow, Edinburgh and Perth, while Plean Country Park offers extensive walking, cycling and wildlife. Be aware the wider area records high deprivation, which may affect resale perceptions; the house itself is new build freehold and requires only routine maintenance.
3 bedroom house for sale in Bruce Street, Plean, FK7 — £99,000 • 3 bed • 1 bath • 818 ft²
4 bedroom detached house for sale in Burnside View, Main Street, Plean, Stirlingshire, FK7 8BL, FK7 — £325,995 • 4 bed • 1 bath • 870 ft²
3 bedroom semi-detached house for sale in Mcaulay Brae, Stirling, FK7 — £204,995 • 3 bed • 2 bath • 767 ft²
3 bedroom semi-detached house for sale in Forth Wynd, Falkirk, FK2 9DJ, FK2 — £245,000 • 3 bed • 3 bath • 679 ft²
4 bedroom detached house for sale in Rowan Drive, Plean, FK7 — £285,000 • 4 bed • 2 bath • 1163 ft²
3 bedroom end of terrace house for sale in Balfour Crescent, Plean, Stirling, FK7 — £138,000 • 3 bed • 1 bath • 967 ft²














































































