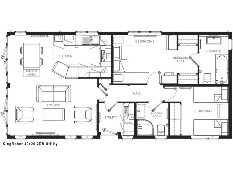
**Standout Features:**
- Luxury 2-bedroom lodge in Tanner Farm Park, TN12
- Spacious roof terrace with stunning 360-degree countryside views
- Two en-suite bedrooms, including a master with dressing area
- Contemporary kitchen with integral appliances
- Extensive decking for outdoor relaxation
- Average-sized garden and driveway included
- New build in a peaceful, rural location in central Kent
Escape the hustle and bustle of everyday life in this exquisite lodge at Tanner Farm Park, a serene sanctuary in the heart of the “Garden of England.” Offering two double bedrooms with en-suites, this thoughtfully designed home features vaulted ceilings that create a bright, airy atmosphere. The modern, open-plan kitchen and dining area flow seamlessly into a cozy lounge—ideal for family gatherings or quiet nights in.
Step outside to your expansive roof terrace, perfect for entertaining or simply soaking in the breathtaking views of the Kent countryside. With easy access to local attractions, including historical sites and beautiful woodlands, you won’t lack for things to do.
Although this property enjoys a tranquil setting, it's well-connected with average mobile signal and fast broadband, ensuring you stay connected in your rural retreat. Act quickly—this luxurious lodge offers exceptional value at £225,000 and combines modern living with the charm of country life, making it an irresistible opportunity for families, first-time buyers, or those seeking a peaceful getaway. A few maintenance considerations apply; inquire for further details. Start envisioning your escape today!
2 bedroom lodge for sale in Tanner Farm Park, TN12 — £285,000 • 2 bed • 1 bath
2 bedroom lodge for sale in Tanner Park Farm, TN12 — £250,000 • 2 bed • 2 bath • 1177 ft²
2 bedroom lodge for sale in Tanner Farm Park, TN12 — £320,000 • 2 bed • 1 bath • 1012 ft²
2 bedroom lodge for sale in Tanner Farm Park, TN12 — £360,000 • 2 bed • 1 bath
2 bedroom lodge for sale in Tanner Farm Park, TN12 — £335,000 • 2 bed • 2 bath
2 bedroom lodge for sale in Tanner Farm Park, TN12 — £175,000 • 2 bed • 2 bath • 675 ft²






















































