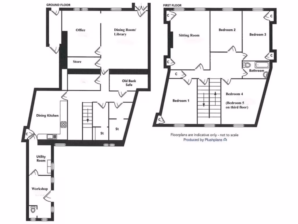
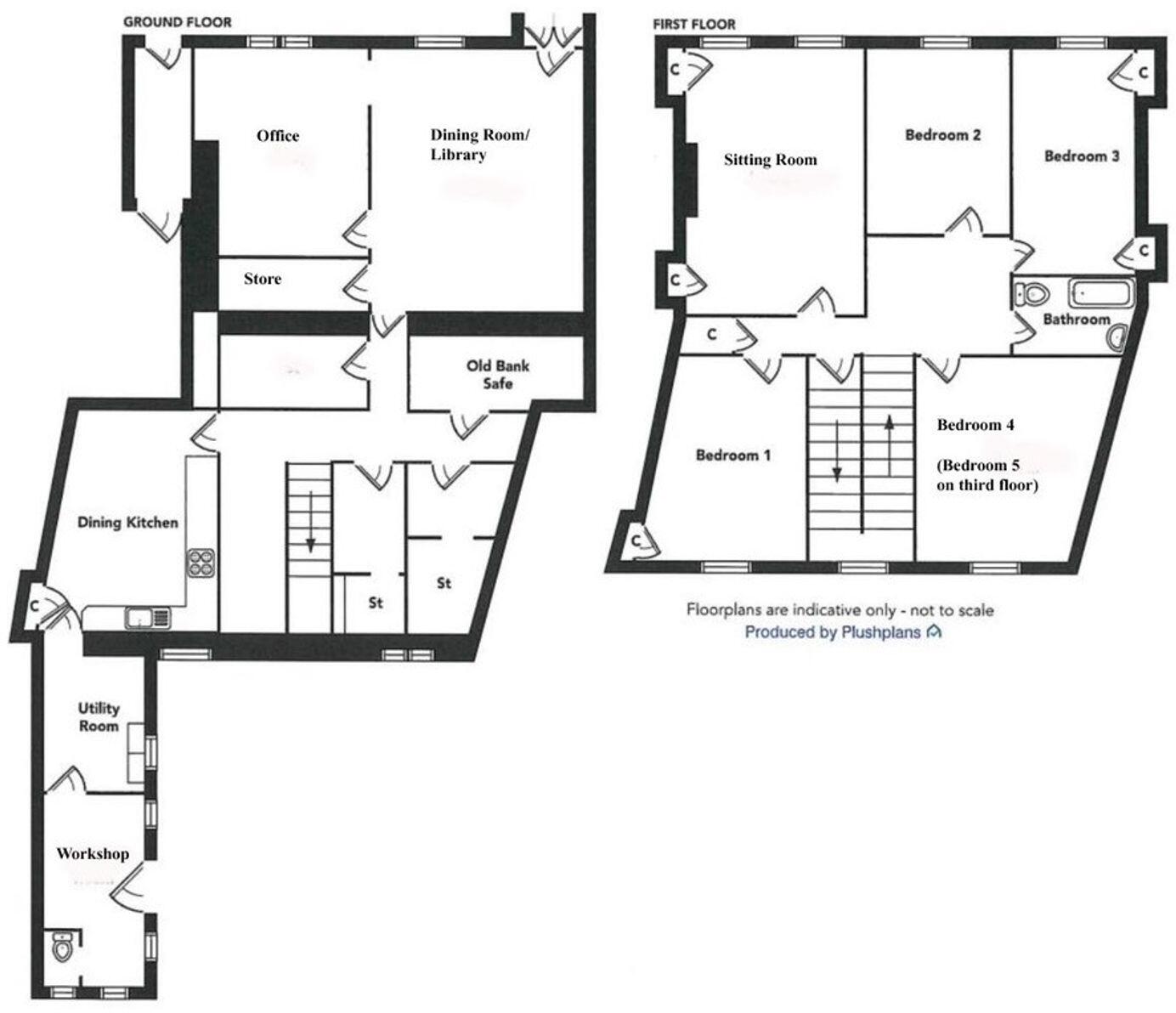
Spacious four-bedroom home with large garden and strong renovation potential.
Former bank building with substantial internal volume
A substantial former bank converted into a striking terraced townhouse, this four-double-bedroom property blends original Victorian character with generous room proportions. High ceilings, sash-style windows and a hand-crafted staircase underline the period charm; large rooms across three storeys give scope for family living, home working or a ground-floor self-contained unit.
The plot includes large rear garden grounds with terraces, mature planting and an outbuilding/greenhouse — unusually generous for a town-centre house and useful for families or a buyer wanting outdoor privacy. The location is convenient for village amenities, coastal access and local schools, while excellent mobile signal supports remote working.
Practical considerations: the home needs modernisation and upgrading (EPC rating F) and appears suited to a refurbishment or conversion project to unlock its full value. There is no obvious off-street parking and the property sits on a main street in a very deprived area, which may affect resale profile or rental demand.
Overall this freehold townhouse is well suited to a family or buyer seeking a character renovation with generous internal space and garden grounds — a project with clear potential to create a spacious, distinctive home once updated.
2 bedroom terraced house for sale in George Street, Whithorn, DG8 — £180,000 • 2 bed • 1 bath • 1389 ft²
4 bedroom terraced house for sale in St. John Street, Whithorn, DG8 — £185,000 • 4 bed • 2 bath • 2385 ft²
4 bedroom end of terrace house for sale in Agnew Crescent, Wigtown, Newton Stewart, DG8 9DS, DG8 — £195,000 • 4 bed • 4 bath • 2827 ft²
Hotel for sale in The Square, Port William, DG8 — £260,000 • 1 bed • 1 bath
3 bedroom terraced house for sale in Main Street, Port William, DG8 — £85,000 • 3 bed • 1 bath • 972 ft²
4 bedroom end of terrace house for sale in George Street, Whithorn, DG8 — £190,000 • 4 bed • 4 bath • 1696 ft²






















































































































































