Large period home with garden, parking and flexible bedroom layout.
Grade II listed Georgian townhouse — restrictions on alterations
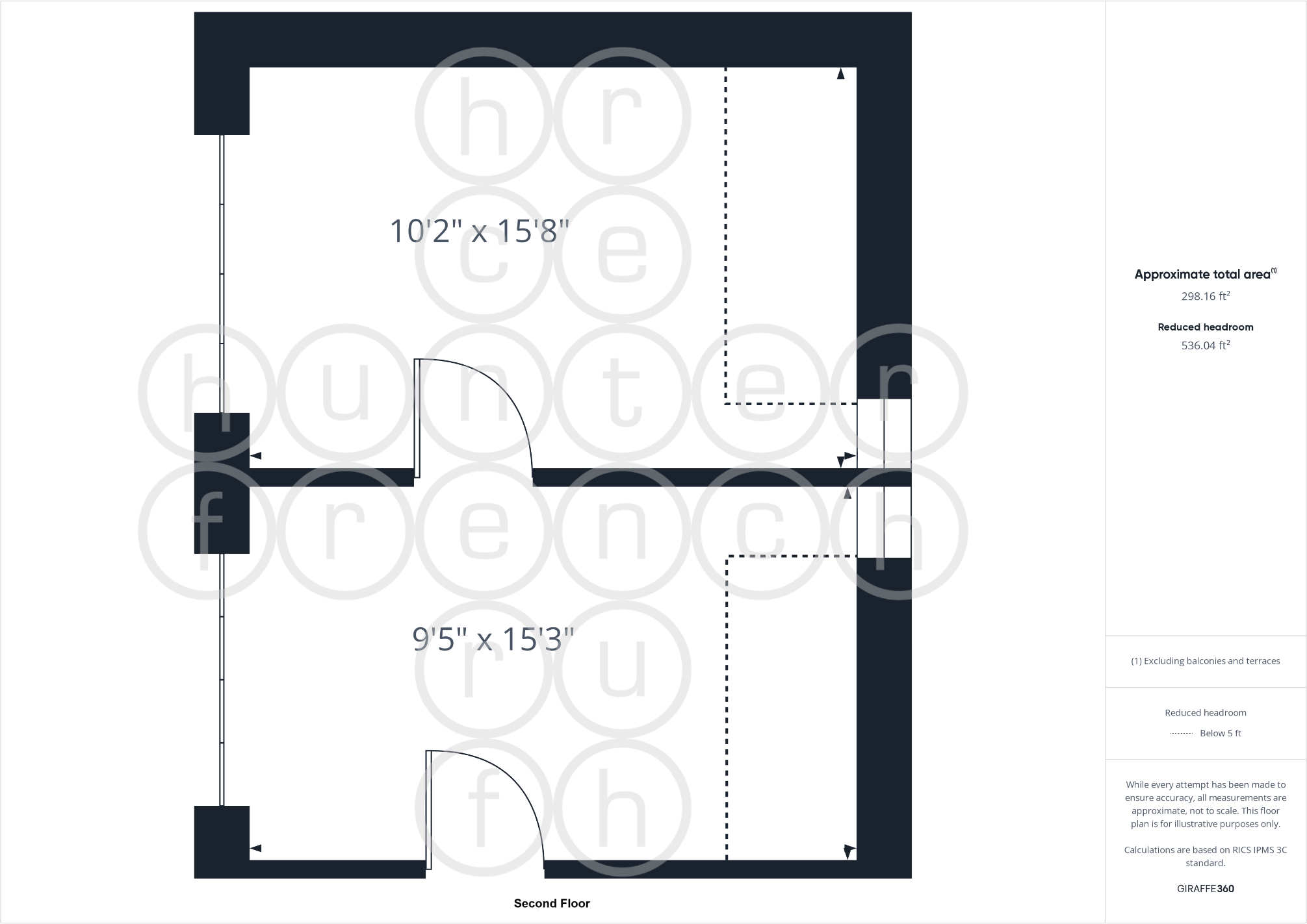
Deceptively spacious: four/five bedrooms across three floors
Large vaulted dining room with Velux windows and garden access
South-facing mature garden with pergola, shed, and paved terrace
Parking for 3–4 cars, electric gates, two garages on site
Cellar with high headroom, storage and plumbing for appliances
Aga in kitchen available by negotiation; granite worktops present
Listed status and conservation area may complicate renovations; crime higher locally
An expansive Grade II listed Georgian townhouse set on Wincanton High Street, offering generous family accommodation over three floors. The house combines period features — sash windows, fireplaces and original balustrade — with a substantial modern extension and vaulted dining room that floods the rear with light. Practical extras include a cellar, useful storage, and a large south-facing garden with a Jasmine-covered pergola.
Accommodation currently reads as four or five bedrooms, including an ensuite and two sitting rooms; the second sitting room has an open wood-burner insert. The farmhouse-style kitchen has granite worktops and an Aga (available by negotiation). The property benefits from off-street parking for 3–4 cars, secure electric gates, and two garages — rare for a town-centre home of this size.
Buyers should note material considerations: the Grade II listing and conservation-area status will restrict alterations and may complicate some works. The town records a higher local crime rate than average, which may affect buyer priorities. EPC information is not available. While the house is largely in good order, some features (stained-glass windows, Aga) are offered for negotiation or removal, and traditional fabric may require sympathetic updating rather than wholesale change.
This home will suit families seeking central-town living with sizable gardens and parking, or buyers aiming to retain period character while upgrading services. The freehold, chain-free position makes for a straightforward legal purchase, but anyone planning changes should factor in listed-building consents.
4 bedroom terraced house for sale in Mill Street, Wincanton, Somerset, BA9 — £425,000 • 4 bed • 2 bath • 2239 ft²
4 bedroom terraced house for sale in Silver Street, Wincanton, Somerset, BA9 — £375,000 • 4 bed • 2 bath • 1971 ft²
5 bedroom end of terrace house for sale in Silver Street, Wincanton, Somerset, BA9 — £485,000 • 5 bed • 3 bath • 2442 ft²
3 bedroom semi-detached house for sale in Lifeguard Villas, South Street, Wincanton, Somerset, BA9 — £294,000 • 3 bed • 2 bath • 1073 ft²
3 bedroom terraced house for sale in Manor Gardens, Wincanton, Somerset, BA9 — £310,000 • 3 bed • 2 bath • 1252 ft²
3 bedroom detached house for sale in Overton, Wincanton, Somerset, BA9 — £400,000 • 3 bed • 3 bath • 1860 ft²






























































































































