Spacious three-bed semi with large garden, parking and extension potential.
Three good-sized bedrooms with modern family bathroom
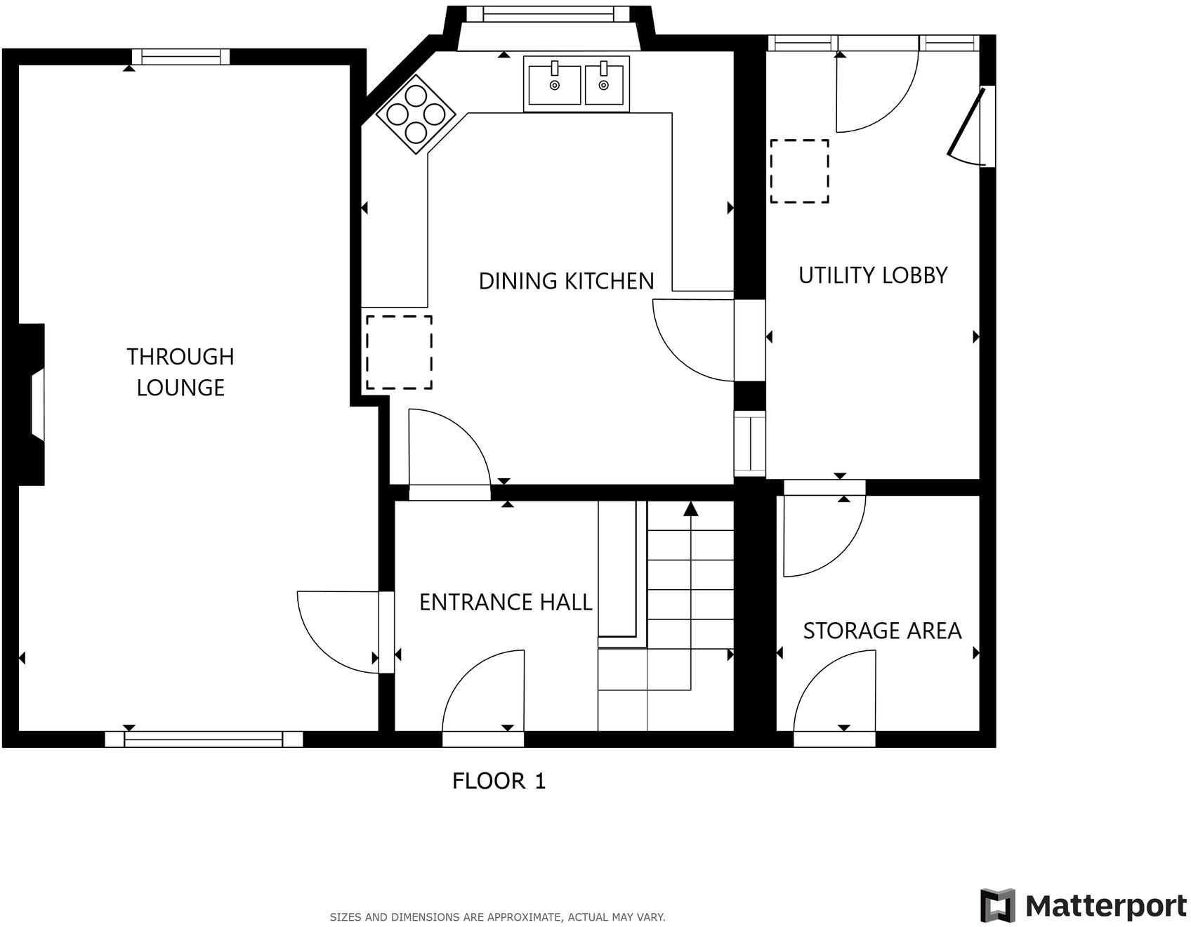
A well-proportioned three-bedroom semi-detached home on Little Glen Road, ideal for growing families seeking practical living space and outdoor privacy. The ground floor offers a bright through lounge with a log-burning stove and a fitted dining kitchen with an adjoining utility lobby and storage — functional spaces for everyday family life. Upstairs are three good-sized bedrooms and a modern family bathroom; overall accommodation totals approximately 1,001 sq ft.
Outside, the property sits on a decent plot with generous off-road parking and a single garage. The rear garden is mature and professionally landscaped, with multiple zones, a covered seating area and gated access to the canal — appealing for relaxed outdoor living and waterside walks. There is scope to extend (loft potential) and the site previously had planning consent to convert the garage and add a storey, though that permission has lapsed and would need reapplication.
Practical facts to note: the house is freehold, has mains gas central heating and double glazing (installed before 2002). The area performs well for broadband and mobile signal and is in an affluent ward, but there are some material drawbacks: the property is in a high flooding-risk zone and the local crime level is above average. These factors should be considered alongside the property’s comfortable layout and garden when assessing suitability.
3 bedroom semi-detached house for sale in Little Glen Road, Glen Parva, Leicester, LE2 — £285,000 • 3 bed • 2 bath • 1195 ft²
3 bedroom semi-detached house for sale in Grosvenor Close, Glen Parva, Leicester, LE2 — £260,000 • 3 bed • 1 bath • 593 ft²
3 bedroom semi-detached house for sale in Southfield Close, Glen Parva, Leicester, LE2 — £265,000 • 3 bed • 1 bath • 808 ft²
3 bedroom semi-detached house for sale in Grosvenor Close, Glen Parva, Leicester, Leicestershire, LE2 — £260,000 • 3 bed • 1 bath • 991 ft²
3 bedroom semi-detached house for sale in Hillsborough Road, Glen Parva, Leicester, LE2 — £250,000 • 3 bed • 1 bath • 948 ft²
3 bedroom semi-detached house for sale in New Bridge Road, Glen Parva, Leicester, LE2 — £260,000 • 3 bed • 1 bath • 732 ft²














































































































































