Auction sale ideal for cash buyers and renovators seeking value uplift.
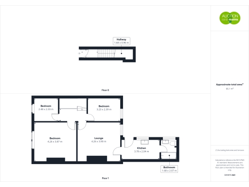
Three-bedroom first-floor flat, 711 sq ft
Offered for sale by online auction (ending 13th November 2025 at 12pm) under unconditional auction terms, this first-floor three-bedroom flat in Felling presents a clear refurbishment and rental or resale opportunity. The property sits in a period mid-terrace built circa 1900–1929 and provides 711 sq ft across a compact layout with a private rear yard and small front garden.
The accommodation includes three bedrooms, a bright living room, fitted kitchen and family bathroom, all heated via gas central heating and with double glazing reported. EPC C and very low council tax (Band A) reduce running costs; the home is near QE Hospital and has good transport links including A184, bus and Metro connections.
Material points to note: the flat is leasehold, needs renovation throughout, and sits in an area with high crime rates and pronounced deprivation. Buyers should budget for modernization works (insulation likely lacking in solid walls) and consider the finance implications of a sale at auction. On-street parking only.
This property is aimed at cash buyers, landlords or developers seeking a low-entry purchase with clear scope to upgrade for rental income or resale. Proximity to several good primary schools adds appeal for area tenants; viewings are recommended prior to bidding to confirm condition and scope of works.
1 bedroom flat for sale in 18 Elliott Drive, Felling, Gateshead, Tyne & Wear, NE10 9QY, NE10 — £30,000 • 1 bed • 1 bath
3 bedroom terraced house for sale in 53 Stainton Drive, Gateshead NE10 9QU, NE10 — £45,000 • 3 bed • 1 bath • 1231 ft²
3 bedroom flat for sale in Tynemouth Road, Howdon, Wallsend, Tyne and Wear, NE28 0LF, NE28 — £45,000 • 3 bed • 1 bath • 1088 ft²
2 bedroom apartment for sale in 13 Swinley Gardens, Newcastle upon Tyne, Tyne and Wear, NE15 7HX, NE15 — £52,500 • 2 bed • 1 bath • 576 ft²
3 bedroom flat for sale in Coast Road, Wallsend, Tyne and Wear, NE28 8DA, NE28 — £70,000 • 3 bed • 1 bath • 699 ft²
3 bedroom flat for sale in Elmfield Road, Hebburn, Tyne and Wear, NE31 2DY, NE31 — £60,000 • 3 bed • 1 bath






































