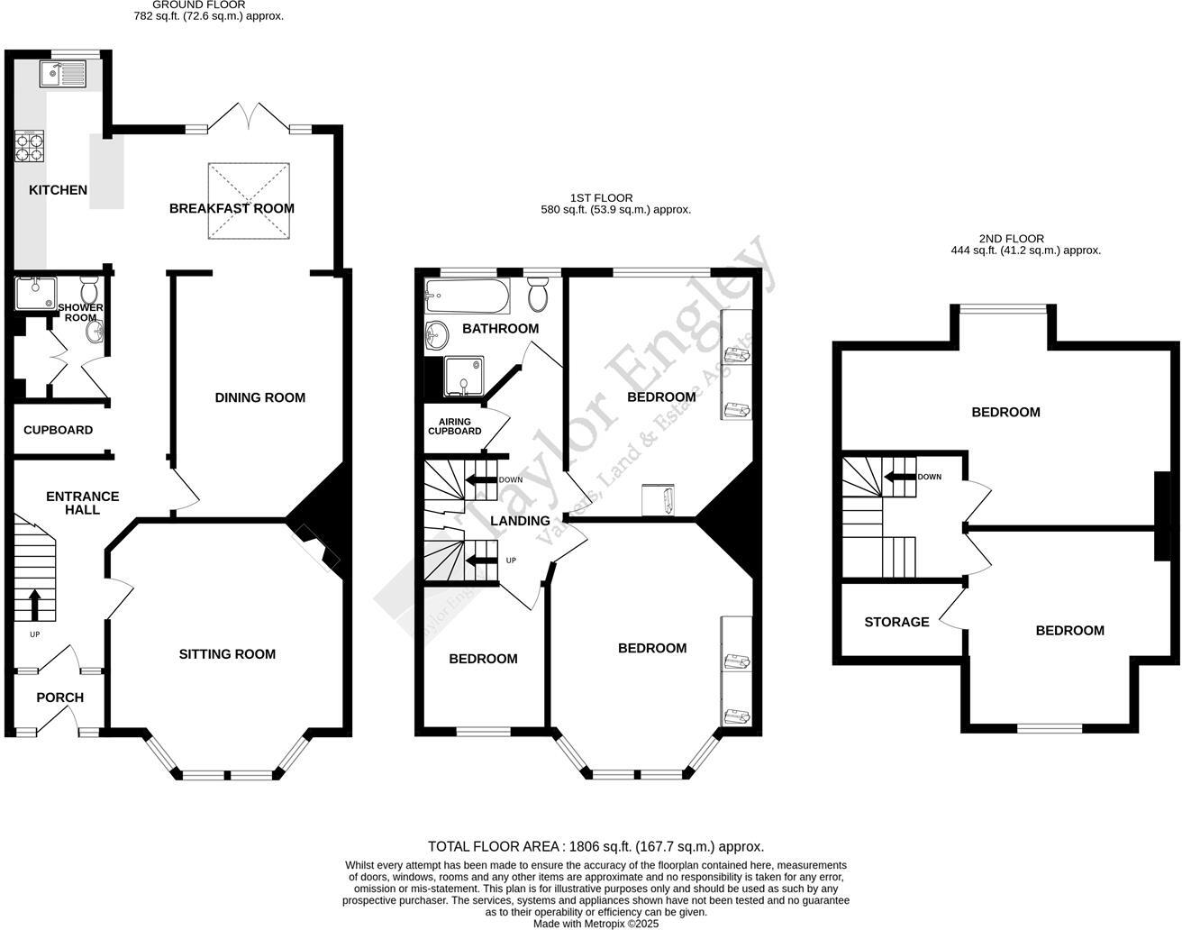
Spacious, characterful five-bedroom Edwardian home with large south‑west garden and garage..
Five bedrooms across three floors with high ceilings and bay windows
South‑west rear garden approx. 80ft, private patio and lawn
On-site garage plus adjacent gated parking space
Tasteful sympathetic refurbishment; modern kitchen and conservatory
Two bathrooms (one ground-floor shower, one first-floor family bathroom)
Sealed-unit double glazing fitted; installation dates unspecified
Cavity walls as built with no confirmed insulation — potential upgrade needed
Freehold, chain free; mains gas central heating (boiler and radiators)
This spacious five-bedroom Edwardian mid-terrace in favoured Old Town offers generous family living across three floors. High ceilings, bay windows and many retained period details give character throughout, while a sympathetic refurbishment adds a modern kitchen, conservatory and refreshed bathrooms.
The rear garden faces south‑west, extends to around 80ft and leads to an on-site garage with adjacent gated parking — rare for this location. The property is sold freehold and chain free, with useful built-in storage and flexible reception rooms for family life or home working.
Practical points: heating is by mains‑gas boiler and radiators, and sealed‑unit double glazing is installed (dates unspecified). Walls are original cavity construction with no confirmed insulation; additional insulation or upgrades may be worth considering. There are two bathrooms for five bedrooms, which may require scheduling for larger families.
Location is strong for families: local primary and secondary schools are rated Good, and Old Town amenities and transport links are close by. The house is well presented but buyers should note that services and fittings have not been tested and a full survey is recommended to identify any hidden maintenance or upgrade needs.
5 bedroom terraced house for sale in Victoria Drive, Old Town, Eastbourne, BN20 — £475,000 • 5 bed • 2 bath • 1619 ft²
5 bedroom terraced house for sale in Green Street, Eastbourne, BN21 — £525,000 • 5 bed • 2 bath • 1598 ft²
4 bedroom terraced house for sale in Victoria Drive, Eastbourne, BN20 8JX, BN20 — £495,000 • 4 bed • 2 bath • 1421 ft²
4 bedroom terraced house for sale in Mill Road, Eastbourne, BN21 — £450,000 • 4 bed • 1 bath • 2179 ft²
5 bedroom terraced house for sale in Vicarage Road, Eastbourne, East Sussex, BN20 — £499,950 • 5 bed • 2 bath • 1314 ft²
5 bedroom terraced house for sale in Hurst Road, Eastbourne, East Sussex, BN21 — £585,000 • 5 bed • 2 bath


















































































