Roomy two-bed home with south-facing garden and garage.
Detached dormer bungalow on a corner plot with decent garden
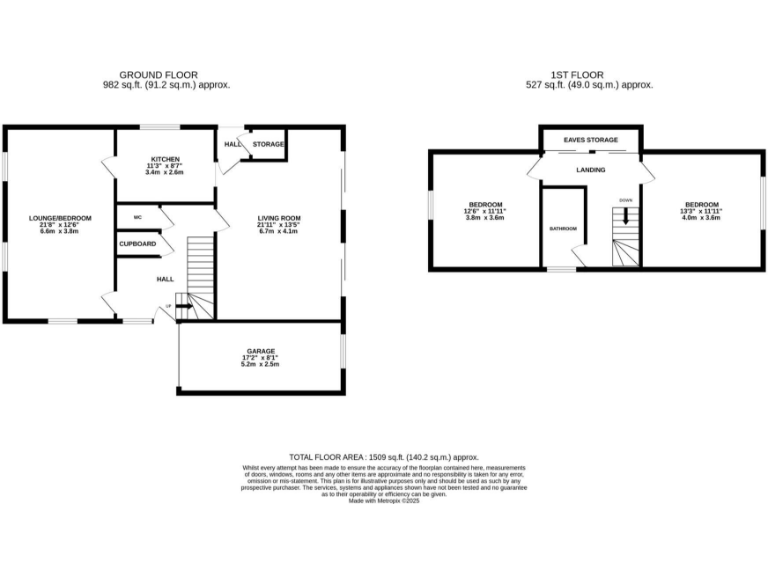
Set on a corner plot in the Waterloo Conservation area, this detached dormer bungalow offers spacious, flexible living across ground and first floors. Original wood flooring in the hallway and lounge and a modern fitted kitchen with integrated appliances give the house a characterful yet practical feel. A south-facing private garden, single garage and driveway providing off-street parking for up to two cars add outdoor appeal and convenience.
The property is well suited to downsizers or small families seeking a roomy, low-maintenance home close to local shops, schools and good transport links into Liverpool and Southport. Heating is mains gas via a Valliant boiler installed three years ago, and the home benefits from double glazing and a freehold title.
Buyers should note this is a two-bedroom, one-bathroom bungalow with a dormer first floor — accommodation is generous but limited in bedroom and bathroom count. Constructed in the mid-20th century, parts may benefit from updating or cosmetic refresh in places despite recent kitchen improvements. The wider area records some local deprivation and average crime levels, which buyers may wish to consider alongside the home’s strong location and plot size.
Overall this is a characterful, roomy bungalow on a decent plot, offering immediate liveability with scope to personalise and add value.
2 bedroom bungalow for sale in Prince Street, Liverpool, L22 — £180,000 • 2 bed • 1 bath • 711 ft²
2 bedroom detached bungalow for sale in Windmill Avenue, Liverpool, Merseyside, L23 — £350,000 • 2 bed • 1 bath • 888 ft²
2 bedroom bungalow for sale in Sandheys Avenue, Liverpool, L22 — £325,000 • 2 bed • 1 bath • 1000 ft²
2 bedroom bungalow for sale in Spinney Crescent, Liverpool, L23 — £675,000 • 2 bed • 2 bath • 1717 ft²
3 bedroom detached bungalow for sale in Moorside Close, Liverpool, L23 — £400,000 • 3 bed • 2 bath • 1213 ft²
3 bedroom bungalow for sale in Salisbury Park, Liverpool, Merseyside, L16 — £625,000 • 3 bed • 1 bath • 1572 ft²














































































































































