Ideal launchpad for buyers wanting central convenience and quick commutes.
Short walk to Norwich city centre
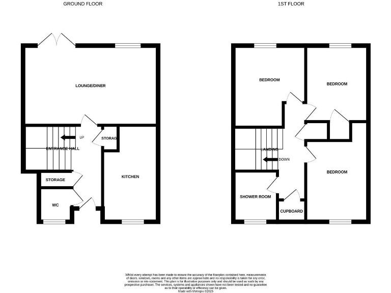
This compact mid-terrace offers a practical, well-presented home a short walk from Norwich city centre. The house has three bedrooms, an open-plan lounge/diner and a fitted kitchen, making it suitable for first-time buyers or buy-to-let investors seeking low-maintenance, central accommodation.
The property benefits from gas central heating, double glazing and neutral decoration throughout, allowing immediate occupation with minimal work. A paved front yard and enclosed rear garden provide private outdoor space, with rear gate access to nearby off-street permit parking.
Important considerations: internal floorspace is small (approx. 576 sq ft) and the area is classified as very deprived with a strong student presence locally, which may affect long-term resale or rental profiles. The property’s construction is traditional solid brick with assumed no wall insulation and the double glazing appears to pre-date 2002, so buyers should budget for potential energy-efficiency improvements.
Overall, this is a tidy, move-in-ready terraced home offering central convenience and reliable basics. It will suit first-time purchasers wanting a low-stress starter home or investors targeting easy-to-manage city rentals, provided they accept limited internal space and potential future retrofit costs.
3 bedroom terraced house for sale in Silver Road, Norwich, NR3 — £210,000 • 3 bed • 1 bath • 840 ft²
3 bedroom terraced house for sale in Anchor Street, Norwich, NR3 — £200,000 • 3 bed • 1 bath • 654 ft²
3 bedroom terraced house for sale in Brightwell Road, Norwich, NR3 — £200,000 • 3 bed • 1 bath • 722 ft²
3 bedroom terraced house for sale in Anchor Street, Norwich, NR3 — £220,000 • 3 bed • 1 bath • 857 ft²
3 bedroom terraced house for sale in Stone Road, Norwich, NR3 — £220,000 • 3 bed • 1 bath • 803 ft²
3 bedroom end of terrace house for sale in Northcote Road, Norwich, NR3 — £250,000 • 3 bed • 1 bath • 633 ft²














































